Bénéficiez des services de nos partenaires locaux soigneusement sélectionnés
pour vous accompagner dans votre parcours d'achat immobilier

Face mer à La Baule, appartement 3 pièces

— La Baule-Escoublac 44500 —
598 000 €
68 m²
3 pièces
balcon/terrasse

Nos partenaires locaux
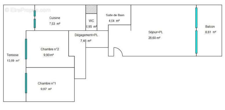
Face mer à La Baule, Appartement 3 pièces avec terrasses, parking et cave
Idéalement situé face à l’océan et à 500m de l'avenue du Général De Gaulle, cet appartement de 3 pièces en rez-de-chaussée surélevé offre un fort potentiel après rénovation.
Il se compose d’une entrée ouvrant sur un séjour lumineux face mer, prolongé par une agréable terrasse exposée sud. Un dégagement avec rangements dessert deux chambres, une cuisine indépendante bénéficiant d’une terrasse côté nord, des toilettes séparées ainsi qu’une salle de bains.
Une place de parking extérieure privative et une cave complètent ce bien.
Des travaux de rénovation sont à prévoir, offrant l’opportunité de créer un appartement sur mesure dans un emplacement recherché.
Nb de lots principaux: 22, charges annuelles de copro. 1027€, pas de procédure en cours.
Les informations sur les risques auxquels ce bien est exposé sont disponibles sur le site Géorisques : www.georisques.gouv.fr
Voir plus

Référence: 593
Bien en copropriété. Nombre de lots : 62. Charges de copropriété : 1027 €.
Honoraires d'agence de 4% à la charge de l'acquéreur
Barème des honoraires
DPE
A
B
C
D
E
F
G
GES
A
B
C
D
E
F
G
Appartement à LA BAULE-ESCOUBLAC
Appartement à LA BAULE-ESCOUBLAC
Appartement à LA BAULE-ESCOUBLAC
Appartement à LA BAULE-ESCOUBLAC
Appartement à LA BAULE-ESCOUBLAC
Appartement à LA BAULE-ESCOUBLAC
Appartement à LA BAULE-ESCOUBLAC
Appartement à LA BAULE-ESCOUBLAC
Appartement à LA BAULE-ESCOUBLAC
Appartement à LA BAULE-ESCOUBLAC
Appartement à LA BAULE-ESCOUBLAC
Appartement à LA BAULE-ESCOUBLAC
Appartement à LA BAULE-ESCOUBLAC
Géorisques

Les informations sur les risques auxquels ce bien est exposé sont disponibles sur le site Géorisques : www.georisques.gouv.fr

Ce site est protégé par hCaptcha Politique de confidentialité et Conditions d’utilisation s’appliquent.