Bénéficiez des services de nos partenaires locaux soigneusement sélectionnés
pour vous accompagner dans votre parcours d'achat immobilier

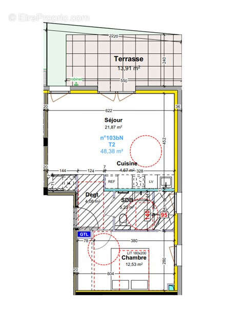
BELFORT - Etang des Forges Très bel appartement de type T2 en rez de jardin (REF VB3756)

— Belfort 90000 —
177 000 €
48 m²
2 pièces
balcon/terrasse

Nos partenaires locaux
BELFORT - Etang des Forges Très bel appartement de type T2 en rez de jardin (REF VB3756)
Le luxe de la nature à deux pas du centre ville.
La Résidence du Lac vous propose un lieu de vie pensé pour le confort et la sérénité au quotidien.
Vous serez séduit par :
- Sa terrasse de 13.91 m2 et son jardin privatif de 4 m2, cellier,
- Son séjour lumineux
- Une Chambre confortable
- Une salle de douche élégante.
Un cadre de vie unique, situé dans un superbe parc paysager, à deux pas de l'étang des Forges, vous profitez d'un environnement paisible, verdoyant à seulement quelques minutes du centre-ville.
Programme neuf répondant à la réglementation environnementale RE 2020. Etiquette classe A
Contactez-nous dès maintenant pour organiser un rendez-vous et découvrir ce projet d'exception.
Voir plus

Référence: 14048
Barème des honoraires
Appartement à BELFORT
Appartement à BELFORT
Appartement à BELFORT
Appartement à BELFORT
Appartement à BELFORT
Géorisques

Les informations sur les risques auxquels ce bien est exposé sont disponibles sur le site Géorisques : www.georisques.gouv.fr

Ce site est protégé par hCaptcha Politique de confidentialité et Conditions d’utilisation s’appliquent.

En poursuivant votre navigation sans modifier vos paramètres, vous acceptez l'utilisation de cookies susceptibles de réaliser des statistiques de visite. Cliquez ici pour plus d'informations