Bénéficiez des services de nos partenaires locaux soigneusement sélectionnés
pour vous accompagner dans votre parcours d'achat immobilier

Maison 100 m² à Morainvilliers

— Morainvilliers 78630 —
475 900 €
100 m²
5 pièces
parking

Nos partenaires locaux
Morainvilliers – secteur recherché côté Bures

Dans un environnement calme et résidentiel, à proximité immédiate des commodités :

Bus au pied de la maison
Station ligne J proche : Villennes-sur-Seine Vernouillet - Verneuil - Triel-sur-Seine
Accès rapide A13 / A14
Zone commerciale des 140 Sous à Orgeval
Écoles à proximité

Maison RE 2020 – livraison février 2026
Découvrez cette maison contemporaine de 100 m², implantée sur un terrain de 499 m² sans vis-à-vis, offrant confort moderne et performance énergétique (DPE AA).

Agencement
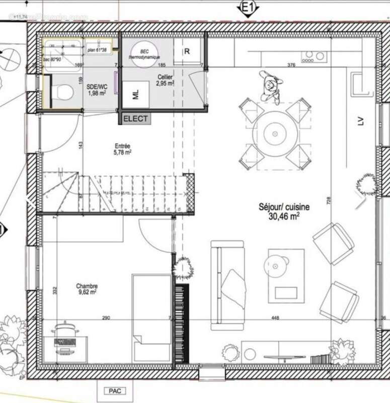
Au rez-de-chaussée :
Entrée
Belle pièce de vie lumineuse exposée SUD-EST avec baie vitrée de 3 m
Cuisine ouverte à aménager selon vos envies
1 chambre
Salle d'eau avec WC
Cellier
À l'étage :
3 chambres
Dressing
Salle d'eau
WC indépendant

Extérieurs
Jardin avant d'environ 60 m²
Grand jardin arrière exposé SUD-EST, idéal pour créer une terrasse
3 places de stationnement au fond du jardin (selon PLUI)
Tranchée drainante pour la gestion des eaux pluviales
Servitude de passage pour le lot arrière

Prestations & équipements
Pompe à chaleur air/eau
Plancher chauffant au RDC + radiateurs à eau à l'étage
Volets roulants électriques
Système connecté (Hexa-connect)
Carrelage effet pierre au RDC & parquet à l'étage
Finitions murs et plafonds incluses
Matériaux de qualité

Travaux à prévoir
Installation cuisine et équipements sanitaire Garanties
Garantie décennale (gros oeuvre, toiture, fondations)
Garantie fenêtres 2 ans

Les + :
Maison neuve aux dernières normes énergétiques
Luminosité exceptionnelle
Aucun vis-à-vis
Fort potentiel d'aménagement extérieur
Environnement calme et pratique

Une opportunité rare sur le secteur !
Contactez-nous dès maintenant pour organiser une visite ou obtenir plus d'informations.

Honoraires inclus de 2.34% TTC à la charge de l'acquéreur. Prix hors honoraires 465 000 €. Classe énergie A, Classe climat A Montant moyen estimé des dépenses annuelles d'énergie pour un usage standard, établi à partir des prix de l'énergie de l'année 2026 : entre 500.00 et 1000.00 €. Les informations sur les risques auxquels ce bien est exposé sont disponibles sur le site Géorisques : georisques.gouv.fr.
Voir plus

Référence: VM398-IMMOMALIN75011
Honoraires d'agence de 2.34% à la charge de l'acquéreur
Barème des honoraires
DPE
A
B
C
D
E
F
G
GES
A
B
C
D
E
F
G
Maison à MORAINVILLIERS
Maison à MORAINVILLIERS
Maison à MORAINVILLIERS
Maison à MORAINVILLIERS
Maison à MORAINVILLIERS
Maison à MORAINVILLIERS
Maison à MORAINVILLIERS
Maison à MORAINVILLIERS
Maison à MORAINVILLIERS
Géorisques

Les informations sur les risques auxquels ce bien est exposé sont disponibles sur le site Géorisques : www.georisques.gouv.fr

Ce site est protégé par hCaptcha Politique de confidentialité et Conditions d’utilisation s’appliquent.

En poursuivant votre navigation sans modifier vos paramètres, vous acceptez l'utilisation de cookies susceptibles de réaliser des statistiques de visite. Cliquez ici pour plus d'informations