Bénéficiez des services de nos partenaires locaux soigneusement sélectionnés
pour vous accompagner dans votre parcours d'achat immobilier

3%COM Grand F4 avec balcon - cour et caves

— Hochfelden 67270 —
156 000 €
97 m²
4 pièces
balcon/terrasse

Nos partenaires locaux
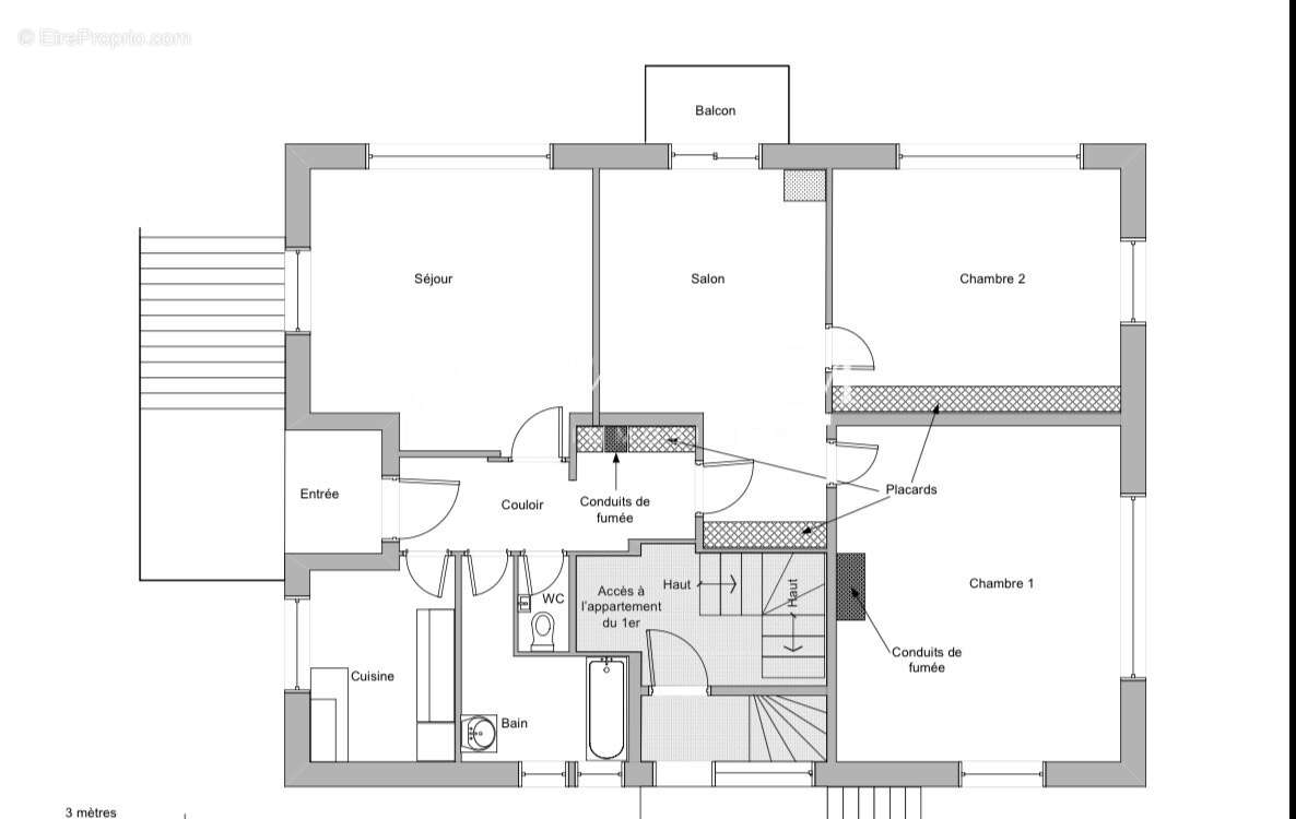
3%.COM - En exclusivité - A HOCHFELDEN, route de Schaffhouse, venez découvrir ce grand appartement F4 de 97m2 avec cour- parkings
-- Appartement F4 situé au RDC d'une petite copropriété ( bi -famille)
--Idéal pour une famille ou un investisseur !
--- Lumineux, fonctionnel avec de nombreux rangements
---Composé de 3 chambres , espace salon , cuisine et salle de bain
-- Il bénéficie d'une cour de 121 m2, d'un balcon et de 3 caves
-- En bon état général mais rafraichisement salle de bain et cuisine à envisager
--- Composition:
-- entrée avec placards
-- un salon (18,47m2) avec placards - accès balcon
-- 3 chambres ( 21m2, 19m2 et 15,92m2) - placards de rangements
-- une cuisine séparée
-- une salle de bain
-- toilette séparé
Extérieur:
- Cour de 121m2
- 3 caves dont 1 buanderie ( 17, 16 et 5m2)
--Informations:
-- DPE: B
-- Fenêtres en PVC double vitrage -
-- Chauffage individuel par PAC
--isolation extérieure
-- Bien soumis à la copropriété - Copropriété en cours de réalisation
-- Le bâtiment est composé de 2 logements
Les +++: beaux volumes- - PAC- cour privée
Dans la commune vous trouverez; : crèche, école maternelle, primaire, collège - nombreuses activités sportives, piscine - restaurants , petits commerces, boulangeries, 3 supermarchés - banques- médecins généralistes et spécialistes...
-- Contactez Sandrine ROTH au [Coordonnées masquées].
Agence Immobilière ROTH IMMOBILIER Sarl, 3%.COM, RCS 803 863 638.
-- Agence et vitrines à Hochfelden, siège à Gimbrett-Kochersberg.
-- Réseau national à honoraires réduits
Les informations sur les risques auxquels ce bien est exposé sont disponibles sur le site Géorisques : www.georisques.gouv.fr - Annonce rédigée et publiée par un Agent Mandataire -
Voir plus

Référence: 56_V1020063598
Bien en copropriété.
Honoraires d'agence de 4% à la charge de l'acquéreur
DPE
A
B
C
D
E
F
G
GES
A
B
C
D
E
F
G
Appartement à HOCHFELDEN
Appartement à HOCHFELDEN
Appartement à HOCHFELDEN
Appartement à HOCHFELDEN
Appartement à HOCHFELDEN
Appartement à HOCHFELDEN
Appartement à HOCHFELDEN
Appartement à HOCHFELDEN
Appartement à HOCHFELDEN
Appartement à HOCHFELDEN
Appartement à HOCHFELDEN
Appartement à HOCHFELDEN
Géorisques

Les informations sur les risques auxquels ce bien est exposé sont disponibles sur le site Géorisques : www.georisques.gouv.fr

Ce site est protégé par hCaptcha Politique de confidentialité et Conditions d’utilisation s’appliquent.

En poursuivant votre navigation sans modifier vos paramètres, vous acceptez l'utilisation de cookies susceptibles de réaliser des statistiques de visite. Cliquez ici pour plus d'informations