Bénéficiez des services de nos partenaires locaux soigneusement sélectionnés
pour vous accompagner dans votre parcours d'achat immobilier

Maison 188 m² à Puimisson

— Puimisson 34480 —
380 000 €
188 m² / 1 642 m²
9 pièces
parkingbalcon/terrassejardin

Nos partenaires locaux
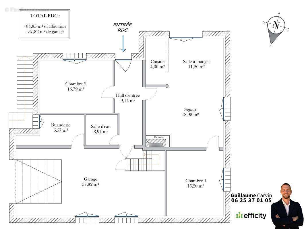
PUIMISSON – BÉZIERS 11 MIN – MAISON FAMILIALE – TERRAIN 1 642 m² – DOUBLE HABITATION – FORT POTENTIEL – Guillaume Carvin – Efficity, l'agence qui estime votre bien en ligne, vous propose cette grande maison située à Puimisson, avec de beaux volumes, une organisation déjà bien pensée sur deux niveaux et un vrai potentiel de valorisation.

Implantée sur un terrain de 1 642 m², elle permet d'imaginer facilement un cadre de vie confortable avec espaces extérieurs, terrasse et aménagements personnalisés.

La maison est organisée sur deux niveaux indépendants :

- un étage principal avec séjour, cuisine, 3 chambres et balcon de 31 m²
- un rez-de-chaussée complet avec séjour, cuisine, 2 chambres et accès au garage

Cette configuration offre de nombreuses possibilités : grande maison familiale, logement indépendant ou projet évolutif.

Le bien est sain et habitable, avec un potentiel de modernisation important permettant une vraie valorisation après travaux.

Proximité immédiate de Béziers (11 min), Valras-Plage (22 min) et Pézenas.

Garage : 37 m²
DPE : D – GES : B
Taxe foncière : 2 097 €

Un bien rare par sa surface, son terrain et ses possibilités.
Pour plus d'informations ou organiser une visite :
Guillaume CARVIN – [Coordonnées masquées]
Les informations sur les risques auxquels ce bien est exposé sont disponibles sur le site Georisque : georisques. gouv. fr
Guillaume Carvin - EI - est Agent Commercial mandataire en immobilier, immatriculé au Registre Spécial des Agents Commerciaux du Tribunal de Commerce de Marseille sous le n°949430789.
Siège social du mandant : effiCity, 48 avenue de Villiers - 75017 PARIS - Société par Actions Simplifiée, société au capital de 132 373,05 euros, immatriculée au RCS Paris 497 617 746 et titulaire de la Carte professionnelle CPI 75[Coordonnées masquées]02 025 - CCI Paris IDF - Caisse de Garantie : GALIAN Assurances 89 rue de la Boétie 75008 Paris
Voir plus

Référence: 210563
Honoraires à la charge du vendeur.
Barème des honoraires
DPE
A
B
C
D
E
F
G
GES
A
B
C
D
E
F
G
Maison à PUIMISSON
Maison à PUIMISSON
Maison à PUIMISSON
Maison à PUIMISSON
Maison à PUIMISSON
Maison à PUIMISSON
Maison à PUIMISSON
Maison à PUIMISSON
Maison à PUIMISSON
Maison à PUIMISSON
Maison à PUIMISSON
Maison à PUIMISSON
Maison à PUIMISSON
Maison à PUIMISSON
Maison à PUIMISSON
Maison à PUIMISSON
Maison à PUIMISSON
Maison à PUIMISSON
Maison à PUIMISSON
Maison à PUIMISSON
Maison à PUIMISSON
Maison à PUIMISSON
Géorisques

Les informations sur les risques auxquels ce bien est exposé sont disponibles sur le site Géorisques : www.georisques.gouv.fr

Ce site est protégé par hCaptcha Politique de confidentialité et Conditions d’utilisation s’appliquent.

En poursuivant votre navigation sans modifier vos paramètres, vous acceptez l'utilisation de cookies susceptibles de réaliser des statistiques de visite. Cliquez ici pour plus d'informations