Bénéficiez des services de nos partenaires locaux soigneusement sélectionnés
pour vous accompagner dans votre parcours d'achat immobilier

Voir tous les partenaires locaux

Le secret le mieux gardé de la rue mon desert !

— Nancy 54000 —
330 000 €
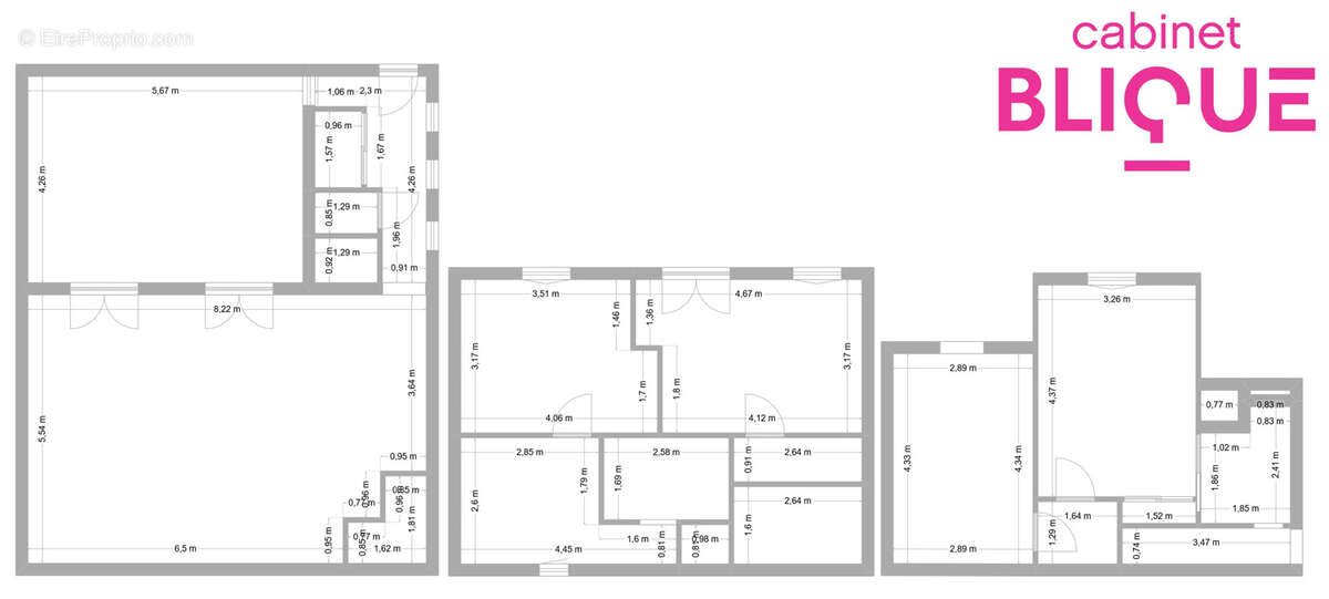
127 m² / 134 m²
5 pièces
parkingbalcon/terrassejardin

Nos partenaires locaux
LE SECRET LE MIEUX GARDÉ DE LA RUE MON DESERT !

Visitez ce bien autrement en vous rendant de suite sur notre site internet !
Promenez-vous dedans grâce à la visite virtuelle afin d’en apprécier toutes les caractéristiques et découvrez plus de photos également.

En plein cœur de Nancy, rue Mon Désert, il existe parfois des adresses qui savent se faire discrètes. Celle-ci en fait partie. À deux pas de la gare, des commerces et de l’effervescence du centre-ville, cette maison de 127 m2 se cache en second corps de bâtiment. Résultat : tout est à portée de main, sauf le bruit. Un petit luxe urbain.
Dès les premiers pas, la visite donne le ton. Le salon-séjour, généreux et chaleureux, s’ouvre naturellement sur une jolie terrasse, elle-même prolongée par un jardin privatif de 80 m2. Oui, vous avez bien lu : un jardin en hypercentre. Le genre de détail qui transforme un simple retour du travail en moment suspendu.
La cuisine ouverte, moderne et conviviale, accompagne parfaitement les soirées entre amis ou les dimanches qui s’étirent. Côté nuit, quatre chambres et deux salles de bains permettent à chacun de trouver sa place, sans jamais marcher sur les plates-bandes de l’autre.
Une cave en sous-sol complète l’ensemble, idéale pour abriter quelques bonnes bouteilles, des vélos ou ces cartons qu’on promet toujours de trier un jour.
Et parce que la vie en centre-ville rime aussi avec praticité, une place de parking située à seulement 50 mètres est disponible en supplément pour 11 000 €.
Une maison lumineuse, paisible et étonnamment verdoyante, comme une respiration au cœur de la ville.
Si vous cherchez un endroit où couper le bruit sans quitter l’énergie du centre, il se pourrait bien que vous veniez de le trouver.
Il ne reste plus qu’à venir la découvrir avec l’équipe Blique. Mais attention : les secrets les mieux gardés ne le restent jamais très longtemps.

Si vous êtes arrivé jusqu’ici… C’est que ce bien mérite sûrement une visite !
Cabinet BLIQUE.
Cette annonce vous est proposée par M. Lukas Lepages - EIRL - NoRSAC: 791 840 440 RSAC, Enregistré à de Nancy
Voir plus

Référence: 3022
Honoraires à la charge du vendeur.
Barème des honoraires
DPE
A
B
C
D
E
F
G
GES
A
B
C
D
E
F
G
Maison à NANCY
Maison à NANCY
Maison à NANCY
Maison à NANCY
Maison à NANCY
Maison à NANCY
Maison à NANCY
Maison à NANCY
Maison à NANCY
Maison à NANCY
Maison à NANCY
Maison à NANCY
Maison à NANCY
Maison à NANCY
Maison à NANCY
Maison à NANCY
Maison à NANCY
Maison à NANCY
Maison à NANCY
Maison à NANCY
Maison à NANCY
Maison à NANCY
Maison à NANCY
Maison à NANCY
Maison à NANCY
Maison à NANCY
Maison à NANCY
Maison à NANCY
Maison à NANCY
Maison à NANCY
Maison à NANCY
Maison à NANCY
Maison à NANCY
Maison à NANCY
Maison à NANCY
Maison à NANCY
Géorisques

Les informations sur les risques auxquels ce bien est exposé sont disponibles sur le site Géorisques : www.georisques.gouv.fr

Ce site est protégé par hCaptcha Politique de confidentialité et Conditions d’utilisation s’appliquent.

En poursuivant votre navigation sans modifier vos paramètres, vous acceptez l'utilisation de cookies susceptibles de réaliser des statistiques de visite. Cliquez ici pour plus d'informations