Bénéficiez des services de nos partenaires locaux soigneusement sélectionnés
pour vous accompagner dans votre parcours d'achat immobilier

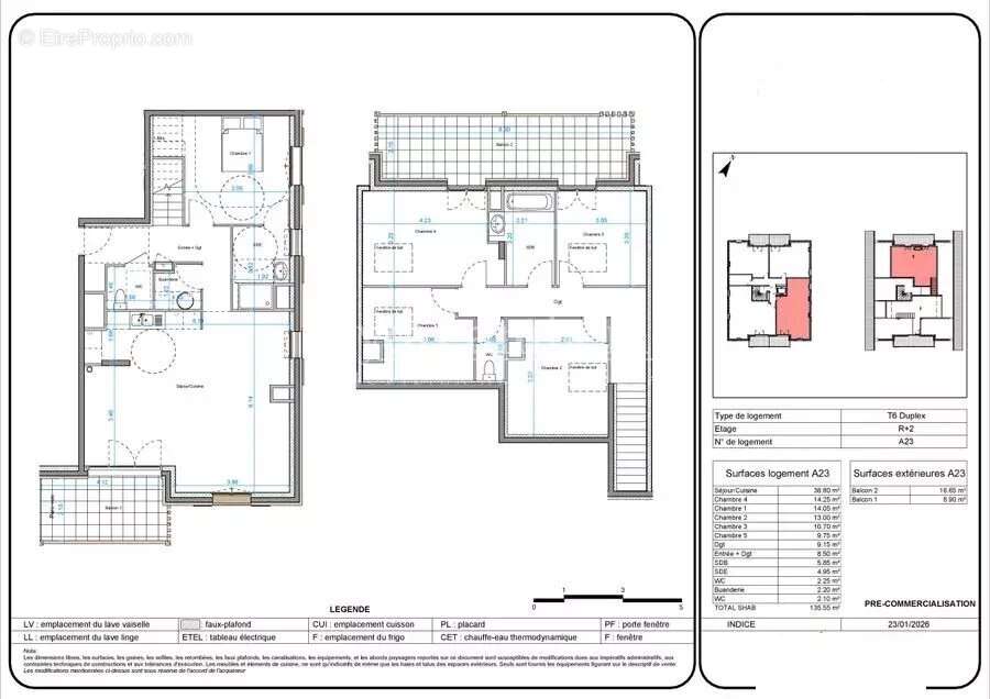
Duplex 5 chambres plein sud dans une residence de stanging a praz sur arly (74120)

— Praz-Sur-Arly 74120 —
986 000 €
135 m²
7 pièces
parkingbalcon/terrasse

Nos partenaires locaux
DUPLEX 5 CHAMBRES PLEIN SUD DANS UNE RESIDENCE DE STANGING A PRAZ SUR ARLY (74120)

FRAIS DE NOTAIRE REDUITS ET CUISINE EQUIPEE OFFERTE

Ce programme neuf de 11 logements est idéalement situé à deux pas du centre du village et des pistes de ski.
L'accès se fait à pieds ou en navette.

Chaque appartement a une vue magnifique sur les montagnes.

Avec de beaux volumes, des matériaux qualitatifs alliant confort moderne et architecture montagnarde, ce programme offre des appartements du T2 au T6 au coeur du village de Praz sur Arly.

Cet appartement est un grand T6 avec cinq chambres, deux salles de bains, toilettes séparés et un grand espace séjour/cuisine.
Ses terrasses sont idéalement exposées. Il est vendu avec sa cuisine équipée, un casier à ski et deux places de parking.

Un emplacement privilégié pour une résidence secondaire ou un investissement locatif haut de gamme.

Terrain acté
Début des travaux printemps 2026
Livraison troisième trimestre 2028.

Praz sur Arly fait parti du domaine skiable de l'Espace Diamant avec ses 200kms de pistes qui relie Praz à Notre Dame de Bellecombe, Flumet, Crest Voland, Les Saisies et Hauteluce.
Vous êtes à 5 minutes de Megève, 1h de Genève et 2h de Lyon.
Voir plus

Référence: MDH2026012-23
Barème des honoraires
Appartement à PRAZ-SUR-ARLY
Appartement à PRAZ-SUR-ARLY
Appartement à PRAZ-SUR-ARLY
Appartement à PRAZ-SUR-ARLY
Géorisques

Les informations sur les risques auxquels ce bien est exposé sont disponibles sur le site Géorisques : www.georisques.gouv.fr

Ce site est protégé par hCaptcha Politique de confidentialité et Conditions d’utilisation s’appliquent.

En poursuivant votre navigation sans modifier vos paramètres, vous acceptez l'utilisation de cookies susceptibles de réaliser des statistiques de visite. Cliquez ici pour plus d'informations