Bénéficiez des services de nos partenaires locaux soigneusement sélectionnés
pour vous accompagner dans votre parcours d'achat immobilier

Terrain constructible Speracedes 1392 m² villa 109 m² avec piscine

— Speracedes 06530 —
230 000 €
1 392 m²
jardin

Nos partenaires locaux
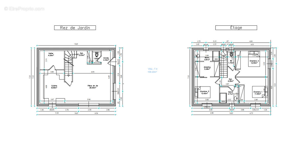
* Exclusivité Spéracèdes * Terrain à bâtir de 1392 m² au calme absolu au fond d'une impasse, avec un permis de construire accordé pour une maison de 109 m² en R+1 et sa piscine. Comprenant : au rez de chaussée : une entrée, un cellier, une cuisine, séjour salon. A l'étage : 3 chambres, un wc, un dressing, une salle de bains, dont une suite parentale avec salle de bains. Une piscine de 6.52 x 3.75 Assainissement : A raccorder au tout à l'égout. Chemin d'accès qui desservira deux villas indépendantes. Exigence : RT 2020. (4.55 % honoraires TTC à la charge de l'acquéreur.)
Voir plus

Référence: 1362
Honoraires d'agence de 4.55% à la charge de l'acquéreur
Barème des honoraires
Terrain à SPERACEDES
Terrain à SPERACEDES
Terrain à SPERACEDES
Terrain à SPERACEDES
Terrain à SPERACEDES
Terrain à SPERACEDES
Terrain à SPERACEDES
Terrain à SPERACEDES
Terrain à SPERACEDES
Terrain à SPERACEDES
Terrain à SPERACEDES
Terrain à SPERACEDES
Terrain à SPERACEDES
Terrain à SPERACEDES
Terrain à SPERACEDES
Terrain à SPERACEDES
Terrain à SPERACEDES
Géorisques

Les informations sur les risques auxquels ce bien est exposé sont disponibles sur le site Géorisques : www.georisques.gouv.fr

Ce site est protégé par hCaptcha Politique de confidentialité et Conditions d’utilisation s’appliquent.