Bénéficiez des services de nos partenaires locaux soigneusement sélectionnés
pour vous accompagner dans votre parcours d'achat immobilier

3 pieces front de mer

— Menton 06500 —
555 000 €
67 m²
3 pièces
parkingbalcon/terrasseascenseur

Nos partenaires locaux
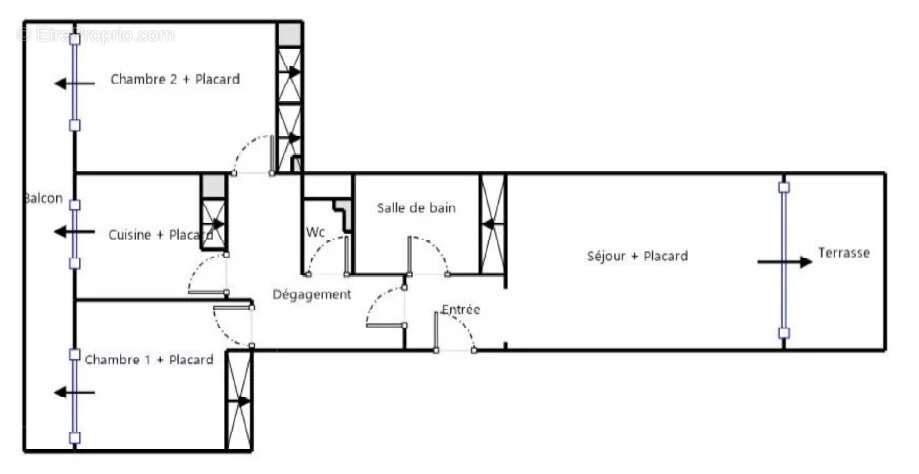
Votre agence vous propose à la vente, en front de mer à Menton, ce bel appartement traversant de 3 pièces situé dans une résidence de standing.
D'une superficie d'environ 68 m², cet appartement lumineux offre un agencement fonctionnel et agréable. Il se compose d'un spacieux séjour ouvrant sur une terrasse avec une vue imprenable sur la mer, ainsi que d'une cuisine indépendante.
L'espace nuit comprend deux chambres avec placards, chacune donnant accès à un balcon. Une salle de bains et un WC indépendant complètent ce bien.
Possibilité d'acquérir un garage en supplément.
Un bien rare, à seulement quelques pas des plages, des commerces et de toutes les commodités.
Voir plus

Référence: 86808626
Barème des honoraires
DPE
A
B
C
D
E
F
G
GES
A
B
C
D
E
F
G
Appartement à MENTON
Appartement à MENTON
Appartement à MENTON
Appartement à MENTON
Appartement à MENTON
Appartement à MENTON
Appartement à MENTON
Géorisques

Les informations sur les risques auxquels ce bien est exposé sont disponibles sur le site Géorisques : www.georisques.gouv.fr

Ce site est protégé par hCaptcha Politique de confidentialité et Conditions d’utilisation s’appliquent.

En poursuivant votre navigation sans modifier vos paramètres, vous acceptez l'utilisation de cookies susceptibles de réaliser des statistiques de visite. Cliquez ici pour plus d'informations