Bénéficiez des services de nos partenaires locaux soigneusement sélectionnés
pour vous accompagner dans votre parcours d'achat immobilier

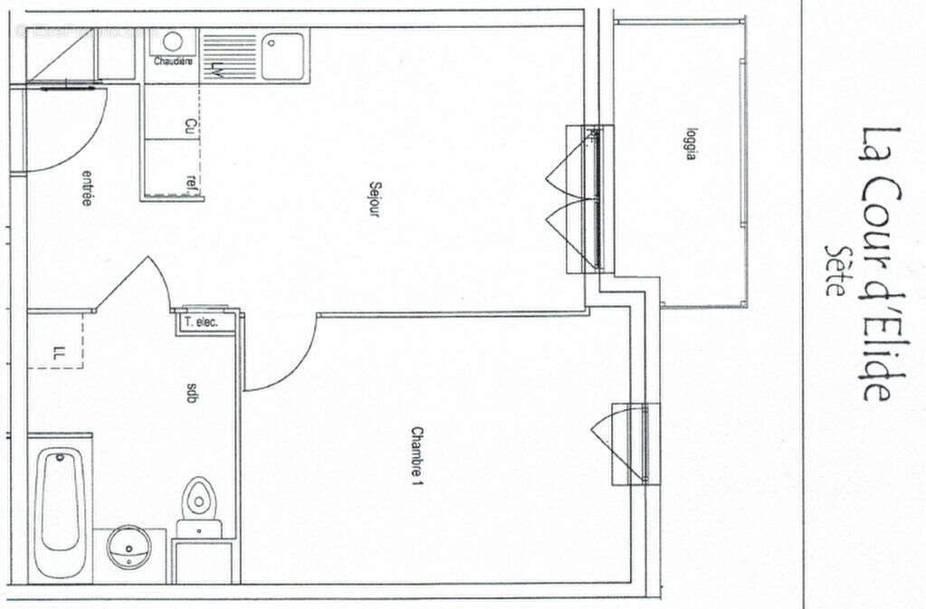
Appartement T2 avec parking - Dernier étage - Résidence récente - Sète

— Sete 34200 —
158 000 €
36 m²
2 pièces
balcon/terrasseascenseur

Nos partenaires locaux
A Sète, à proximité immédiate de la gare et du centre-ville, découvrez ce bel appartement T2 situé au sein d'une résidence récente, sécurisée et parfaitement entretenue avec ascenseur. Niché au 5 ème et dernier étage, ce bien rare bénéficie d'un environnement calme et d'une vue dégagée, offrant un cadre de vie agréable au quotidien. D'une surface d'environ 36 m², cet appartement se compose d'une entrée avec placard, idéale pour optimiser le rangement dès votre arrivée. La pièce de vie lumineuse accueille une cuisine semi-équipée ouverte sur le séjour, créant un espace convivial et fonctionnel. Cet espace s'ouvre sur un agréable balcon, parfait pour profiter des beaux jours et savourer des moments de détente en extérieur. L'espace nuit comprend une chambre confortable, ainsi qu'une salle de bain avec WC, pensée pour allier praticité et confort. Une place de parking sécurisée vient compléter ce bien, un véritable atout dans ce secteur recherché. Vous serez séduit par les nombreux avantages de cet appartement : son emplacement privilégié à deux pas des transports, commerces et commodités, son positionnement en dernier étage garantissant tranquillité et luminosité, ainsi que les prestations de qualité offertes par la résidence. Idéal pour un investissement locatif, un premier achat ou un pied-à-terre, ce bien présente un excellent potentiel. Une opportunité à ne pas manquer sur le secteur de Sète. Contactez-nous dès maintenant pour organiser une visite !
Voir plus

Référence: 753
Honoraires à la charge du vendeur.
Barème des honoraires
DPE
A
B
C
D
E
F
G
GES
A
B
C
D
E
F
G
Appartement à SETE
Appartement à SETE
Appartement à SETE
Appartement à SETE
Appartement à SETE
Appartement à SETE
Géorisques

Les informations sur les risques auxquels ce bien est exposé sont disponibles sur le site Géorisques : www.georisques.gouv.fr

Ce site est protégé par hCaptcha Politique de confidentialité et Conditions d’utilisation s’appliquent.

En poursuivant votre navigation sans modifier vos paramètres, vous acceptez l'utilisation de cookies susceptibles de réaliser des statistiques de visite. Cliquez ici pour plus d'informations