Bénéficiez des services de nos partenaires locaux soigneusement sélectionnés
pour vous accompagner dans votre parcours d'achat immobilier

Vente Maison 6 pièces de 158m² - 44340 Bouguenais

— Bouguenais 44340 —
377 300 €
158 m² / 790 m²
6 pièces
jardin

Nos partenaires locaux
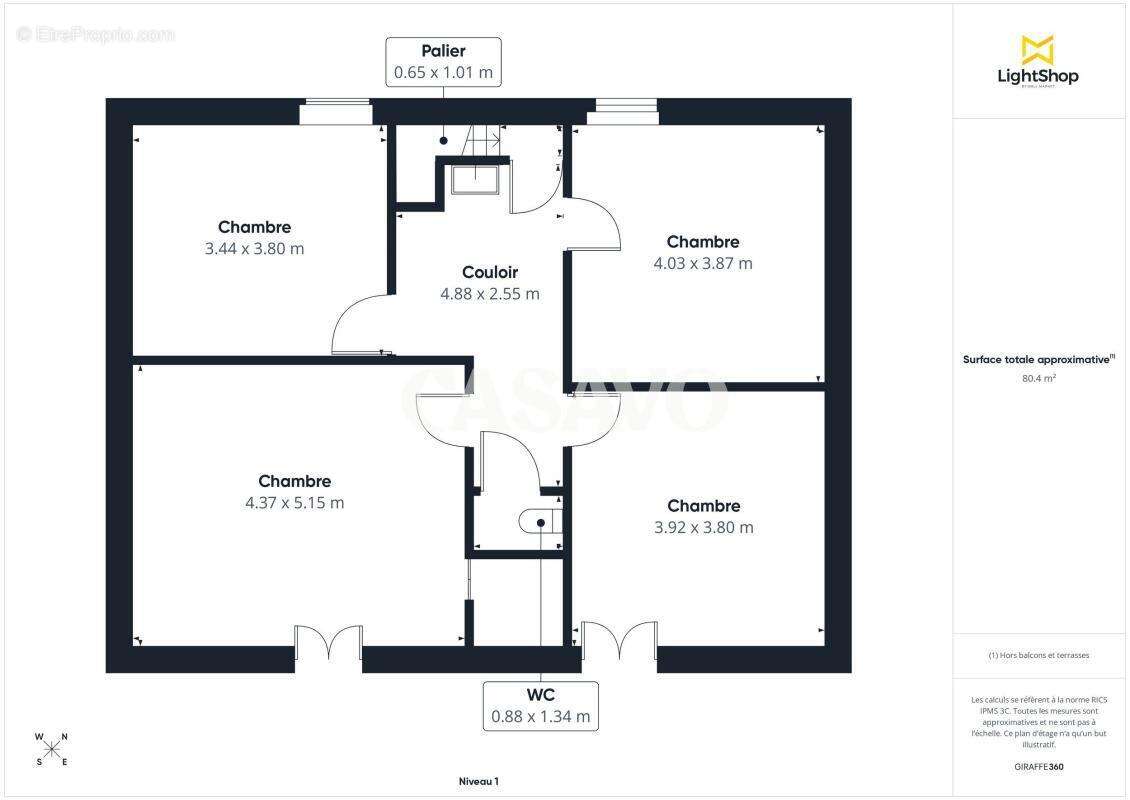
Casavo vous propose à la vente cette maison au cœur d'un environnement de village, découvrez cette authentique maison en pierre de 158 m², pleine de cachet et offrant un fort potentiel de rénovation.

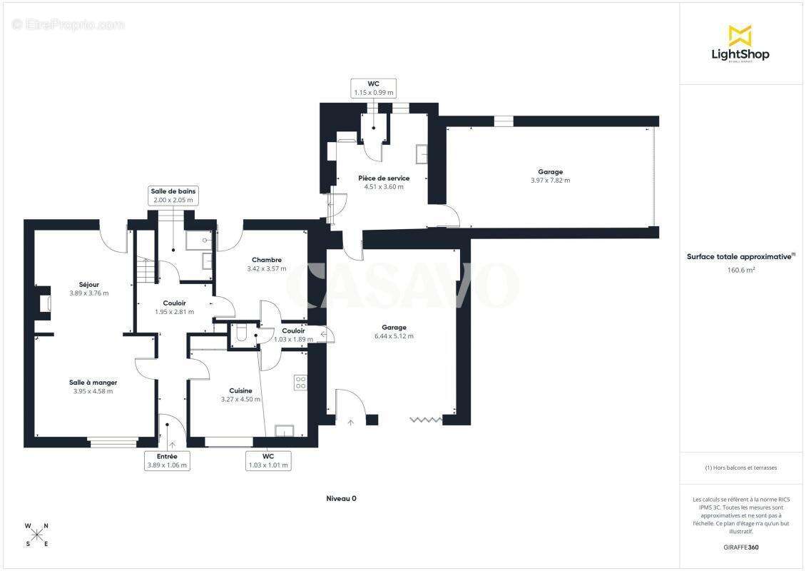
Vous serez séduit par le charme de l'ancien avec ses poutres apparentes et sa belle hauteur sous plafond. La maison se compose d'un salon séjour traversant de 50m2 , apportant luminosité tout au long de la journée, d'une cuisine séparée, ainsi que de quatre chambres.

À l'extérieur, vous profiterez d'un beau jardin clôturé d'environ 790m2, idéal pour les moments en famille, ainsi que de nombreuses dépendances offrant de multiples possibilités (atelier, stockage, extension…). Un garage de 30m2 complète l'ensemble.

L'ensemble est dans son jus et nécessite une rénovation complète, laissant libre cours à vos envies pour créer un lieu de vie unique à votre image.

Un bien rare pour les amateurs de caractère et de projets de rénovation.

À découvrir sans tarder !
Taxe foncière : 1580€ par an

Prix moyens des énergies indexés sur l'année 2021, 2022, 2023 (abonnements compris)
Montant minimum estimé des dépenses annuelles d'énergie pour un usage standard 3 460 €
Montant maximum estimé des dépenses annuelles d'énergie pour un usage standard 4 730 €
Les informations sur les risques auxquels ce bien est exposé sont disponibles sur le site Géorisques : www.georisques.gouv.fr
Consommation énergie primaire : 252 kWh/m²/an
Consommation énergie finale : 244 kWh/m²/an

Montant estimé des dépenses annuelles d'énergie pour un usage standard : entre 3 460 € et 4 730 € sur les années 2021, 2022 et 2023 (abonnements compris).

Les informations sur les risques auxquels ce bien est exposé sont disponibles sur le site Géorisques : www.georisques.gouv.fr

Contactez Jean Yves Berthomé
Agent Commercial en immobilier immatriculé au registre spécial des commerciaux (RSAC) du tribunal de commerce de Nantes sous le numéro "2017AC00135".

Ce bien est commercialisé par Casavo.

Intéressé par ce bien ? Plus d'informations sur le site de Casavo.
Voir plus

Référence: 53776
Honoraires d'agence de 4.81% à la charge de l'acquéreur
DPE
A
B
C
D
E
F
G
GES
A
B
C
D
E
F
G
Maison à BOUGUENAIS
Maison à BOUGUENAIS
Maison à BOUGUENAIS
Maison à BOUGUENAIS
Maison à BOUGUENAIS
Maison à BOUGUENAIS
Maison à BOUGUENAIS
Maison à BOUGUENAIS
Maison à BOUGUENAIS
Maison à BOUGUENAIS
Maison à BOUGUENAIS
Géorisques

Les informations sur les risques auxquels ce bien est exposé sont disponibles sur le site Géorisques : www.georisques.gouv.fr

Ce site est protégé par hCaptcha Politique de confidentialité et Conditions d’utilisation s’appliquent.

En poursuivant votre navigation sans modifier vos paramètres, vous acceptez l'utilisation de cookies susceptibles de réaliser des statistiques de visite. Cliquez ici pour plus d'informations