Bénéficiez des services de nos partenaires locaux soigneusement sélectionnés
pour vous accompagner dans votre parcours d'achat immobilier

Vente appartment T2 Biancarello

— Ajaccio 20000 —
194 000 €
47 m²
2 pièces
balcon/terrasse

Nos partenaires locaux
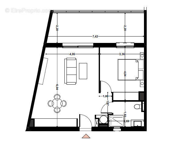
L’agence STG IMMOBILIER, spécialiste de l’immobilier à Ajaccio est heureuse de vous présenter cet appartement 2 pièces, situé au sein d’une résidence avec ascenseur à taille humaine.
Situé au cœur du quartier du Loretto, la Résidence BIANCARELLO bénéficie d’un environnement calme à seulement quelques minutes des commerces de proximité.
Au rez-de-chaussée de la résidence, cet appartement de 47,43m2 est agencé de la manière suivante :
Un spacieux séjour avec cuisine ouverte de 27,73m2, donnant accès à une agréable terrasse filante de 16,35 m2, une chambre de 12,66m2 avec accès direct à la terrasse, ainsi qu’une salle d’eau avec WC de 4,71m2.
Une place de stationnement privatif au sein de la résidence complète ce lot.
Prestations :

Menuiseries PVC avec double vitrage isolant
Volets roulants électriques
Caves et box fermés disponibles en supplément
Cuisines équipées (budget de 3 000 € pour les T1, 4 000 € pour les T2 et 4 500 € pour les T3)

Possibilité achat en sus d’une cave au prix de 7 200 € et/ou d'un box au prix de 20 000 €.
Actabilité : immédiate
Livraison : 3ème semestre 2027
Pour plus d’informations, n’hésitez pas à contacter Lou BOUSQUET au [Coordonnées masquées].
Les informations sur les risques auxquels ce bien est exposé sont disponibles sur le site Géorisques www.georisques.gouv.fr
Voir plus

Bien en copropriété.
Barème des honoraires
Appartement à AJACCIO
Appartement à AJACCIO
Appartement à AJACCIO
Appartement à AJACCIO
Géorisques

Les informations sur les risques auxquels ce bien est exposé sont disponibles sur le site Géorisques : www.georisques.gouv.fr

Ce site est protégé par hCaptcha Politique de confidentialité et Conditions d’utilisation s’appliquent.

En poursuivant votre navigation sans modifier vos paramètres, vous acceptez l'utilisation de cookies susceptibles de réaliser des statistiques de visite. Cliquez ici pour plus d'informations