Bénéficiez des services de nos partenaires locaux soigneusement sélectionnés
pour vous accompagner dans votre parcours d'achat immobilier

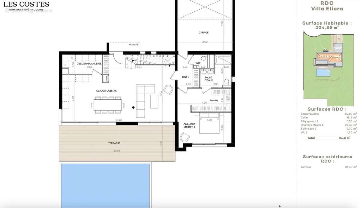
MOUGINS – Nouveau Domaine Privé de 10 Villas : Villa Neuve 204m² - 4 Suites - Piscine & Sécurité

— Mougins 06250 —
2 220 000 €
204 m² / 977 m²
6 pièces
parkingbalcon/terrassejardinpiscineaccès handicapé

Nos partenaires locaux
Situé au pied du vieux village de Mougins, dans l'un des secteurs les plus prisés de la Côte d’Azur, découvrez un nouveau domaine privé à taille humaine composé de seulement 10 villas d'architecte. Ce projet entièrement neuf, niché au calme absolu, offre un cadre de vie sécurisé et prestigieux (Livraison 1er Trimestre 2028).
Cette propriété d'exception développe 204,25 m² de surface habitable avec des volumes hors normes :
• Espaces de Réception : Une pièce de vie monumentale de 65,30 m² (séjour/cuisine) baignée de lumière, s'ouvrant par de larges baies vitrées sur une vaste terrasse et une piscine privée.
• Espace Nuit : 4 suites complètes. Une suite parentale de plain-pied (23 m²) avec dressing et salle d'eau. À l'étage, 3 suites spacieuses disposant chacune de leur propre salle d'eau privative.
• Prestations de Luxe : Cuisine italienne haut de gamme (budget de 20 000 € inclus), carrelages grand format Marazzi, parquets nobles, domotique intégrée et climatisation réversible gainable. Construction aux dernières normes environnementales RE 2020.
• Sécurité & Garage : Domaine entièrement clos sous vidéosurveillance HD (2 ans d'abonnement offerts), vidéophonie sur smartphone et porte d'entrée isoblindée. Garage fermé de 23 m² équipé d'une borne de recharge pour véhicules électriques.
Un investissement rare bénéficiant de frais de notaire réduits (~2,5%).
Voir plus

Référence: 86884188
Barème des honoraires
GES
A
B
C
D
E
F
G
Maison à MOUGINS
Maison à MOUGINS
Maison à MOUGINS
Maison à MOUGINS
Maison à MOUGINS
Maison à MOUGINS
Maison à MOUGINS
Maison à MOUGINS
Maison à MOUGINS
Maison à MOUGINS
Maison à MOUGINS
Maison à MOUGINS
Géorisques

Les informations sur les risques auxquels ce bien est exposé sont disponibles sur le site Géorisques : www.georisques.gouv.fr

Ce site est protégé par hCaptcha Politique de confidentialité et Conditions d’utilisation s’appliquent.

En poursuivant votre navigation sans modifier vos paramètres, vous acceptez l'utilisation de cookies susceptibles de réaliser des statistiques de visite. Cliquez ici pour plus d'informations