Bénéficiez des services de nos partenaires locaux soigneusement sélectionnés
pour vous accompagner dans votre parcours d'achat immobilier

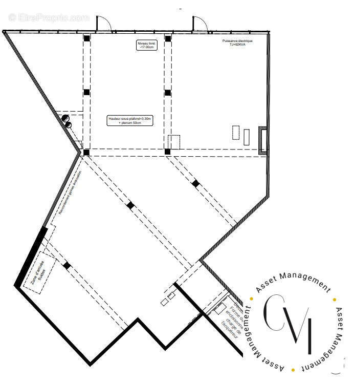
Commerce 298 m² à Merignac

— Merignac 33700 —
874 000 €
298 m²

Nos partenaires locaux
Murs libres d'un local commercial de 298m² à vendre en VEFA à Merignac (33) dans un programme de qualité dont la livraison est prévue à partir du 2ème trimestre 2027 - Local livré brut de béton - Idéalement situé à 5 minutes à pied de la place Mondésir – supermarché, marché le dimanche et commerces de proximité. Le CHU de Pellegrin est également facilement accessible. Le centre commercial Mérignac Soleil est aussi tout proche. Une situation idéale pour vos sorties en centre-ville, mais aussi pour bénéficier de tous les essentiels du quotidien. Côté transports, cette résidence est idéalement desservie. Plusieurs lignes de bus à proximité et deux gares TER se situent à 6 minutes à vélo du programme. À la gare de Mérignac Arlac, vous pourrez prendre le TER ou le tramway A et à la gare de Caudéran-Mérignac, vous pourrez accéder au TER. Le tout combiné aux nombreuses pistes cyclables qui parcourent la ville.
Prix de vente 874.000€ TTC (728.333€ HT), nous contacter pour plus de précisions

Dans une copropriété de 120 lots. Aucune procédure n'est en cours. Non soumis au DPE. Les informations sur les risques auxquels ce bien est exposé sont disponibles sur le site Géorisques : georisques.gouv.fr.

Votre conseiller CONSEIL ET VALORISATION IMMOBILIER ASSET MANAGEMENT : Conseiller Immobilier - Davy SERFATI
Voir plus

Référence: VP1074-CVI
Bien en copropriété. Nombre de lots : 120.
Honoraires à la charge de l'acquéreur.
Commerce à MERIGNAC
Commerce à MERIGNAC
Commerce à MERIGNAC
Géorisques

Les informations sur les risques auxquels ce bien est exposé sont disponibles sur le site Géorisques : www.georisques.gouv.fr

Ce site est protégé par hCaptcha Politique de confidentialité et Conditions d’utilisation s’appliquent.

En poursuivant votre navigation sans modifier vos paramètres, vous acceptez l'utilisation de cookies susceptibles de réaliser des statistiques de visite. Cliquez ici pour plus d'informations