Bénéficiez des services de nos partenaires locaux soigneusement sélectionnés
pour vous accompagner dans votre parcours d'achat immobilier

Maison 144 m² à Bussy-Saint-Georges

— Bussy-Saint-Georges 77600 —
495 000 €
144 m²
4 pièces
parkingbalcon/terrasseaccès handicapé

Nos partenaires locaux
Située à Bussy-Saint-Georges (limite Chanteloup-en-Brie) dans un secteur calme, verdoyant et proche de toutes commodités.

Maison refaite à neuf avec les dernières normes de construction, d'isolation, de chauffage et d'équipement.

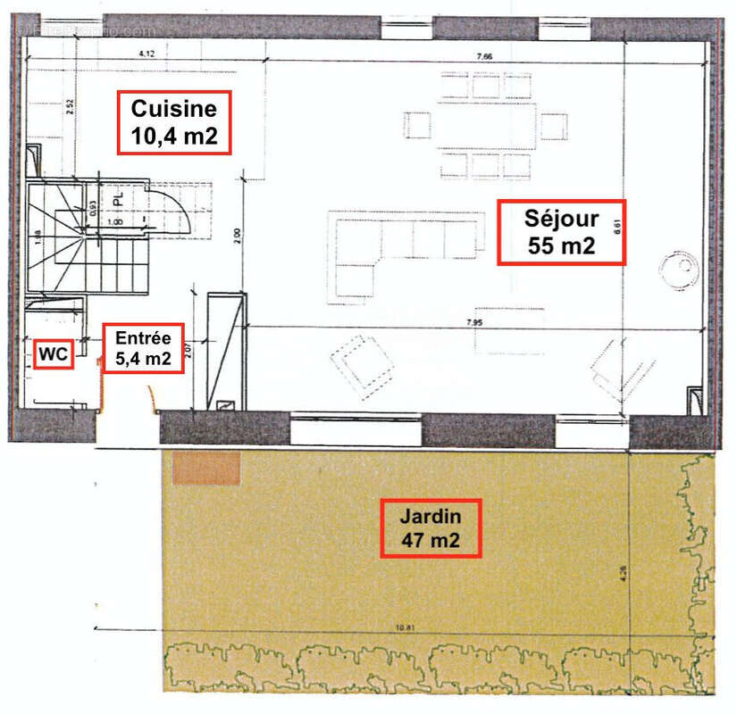
D'une surface de 140 m2 habitable + grenier (180 m2 utile), vous profiterez de grand volume pour chaque pièces

- Séjour avec cuisine ouverte d'environ 65 m2
- Suite parentale d'environs 15 m2 avec salle de bain et WC privatif
- Deux chambres de 14 m2 et 12 m2, chacune avec salle d'eau privative
- Grand grenier pour stoker ou aménager un espace selon vos envies

Coté équipements et prestations :

- Pompe à chaleur air-air
- Isolation renforcé (thermique et phonique)
- Fenêtre double et/ou triple vitrage
- Volet roulant électrique
- Porte d'entrée en alu avec serrure sécurisé 3 points
- Robinetterie PORCHER
- WC suspendu
- Bac à douche 90x120 et ou x100
- Carrelage 60x60 au RDC
- Parquet dans les chambres et palier

Coté Avantage :

- Frais de notaire réduit, environs 2,5% (une économie d'environ 28.000 €)
- Possibilité de financement par le prêt à 0%
- Garantie décennale sur le gros oeuvre
- Garantie biennale sur les équipements

Photos non contractuelle (projection 3D)

Honoraires à la charge du vendeur. Dans une copropriété de 6 lots. Aucune procédure n'est en cours. DPE en cours. Les informations sur les risques auxquels ce bien est exposé sont disponibles sur le site Géorisques : georisques.gouv.fr.

Votre conseiller We Invest France : Gael Bernardet
Agent commercial (Entreprise individuelle)
RSAC 2016AC00139 MEAUX.
Les informations sur les risques auxquels ce bien est exposé sont disponibles sur le site Géorisques : www.georisques.gouv.fr
Voir plus

Référence: VM86382
Bien en copropriété. Nombre de lots : 6.
Honoraires à la charge du vendeur.
Barème des honoraires
Maison à BUSSY-SAINT-GEORGES
Maison à BUSSY-SAINT-GEORGES
Maison à BUSSY-SAINT-GEORGES
Maison à BUSSY-SAINT-GEORGES
Maison à BUSSY-SAINT-GEORGES
Maison à BUSSY-SAINT-GEORGES
Géorisques

Les informations sur les risques auxquels ce bien est exposé sont disponibles sur le site Géorisques : www.georisques.gouv.fr

Ce site est protégé par hCaptcha Politique de confidentialité et Conditions d’utilisation s’appliquent.

En poursuivant votre navigation sans modifier vos paramètres, vous acceptez l'utilisation de cookies susceptibles de réaliser des statistiques de visite. Cliquez ici pour plus d'informations