Bénéficiez des services de nos partenaires locaux soigneusement sélectionnés
pour vous accompagner dans votre parcours d'achat immobilier

Immeuble de rapport tulle

— Tulle 19000 —
270 000 €
209 m²
parking

Nos partenaires locaux
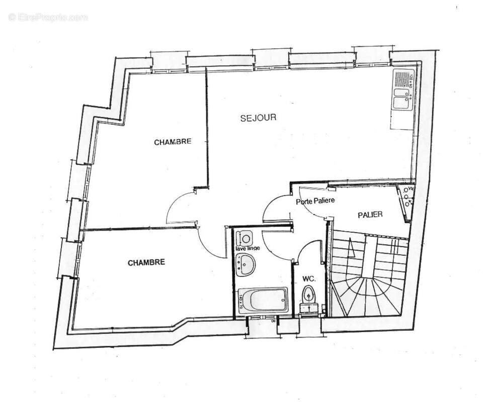
L’agence Pont Cardinal Immobilier vous propose cet immeuble de caractère idéalement situé à proximité immédiate de la cité administrative. Implanté en angle de rue, il bénéficie d’une luminosité optimale tout au long de la journée grâce à une exposition plein Sud. Composition de l’immeuble • Du 1er au 4ème étage : 4 appartements de type T3, d’environ 52 m2 chacun, à raison d’un logement par palier • Rez-de-chaussée : garage privatif, local de stockage et hall d’entrée • Sous-sol : 5 caves, dont une attribuée à chaque lot. Un investissement rentable et sécurisé • Rentabilité brute : 8 % • Taux d’occupation : 98 % sur les 10 dernières années. Un historique locatif solide, gage de stabilité et de sérénité pour l’investisseur L’immeuble a bénéficié d’une rénovation complète en 2007, privilégiant des matériaux durables et une gestion optimisée des coûts d’entretien. • Bâti sain et régulièrement entretenu • Planchers en bois massif vitrifiés (hors pièces d’eau carrelées) • Menuiseries en double vitrage • Travaux d’isolation thermique réalisés. Performance énergétique • DPE classé C pour 2 lots et D pour 2 lots. Immeuble conforme aux exigences de la réglementation actuelle (Loi Climat & Résilience). Aucun travaux à prévoir à court ou moyen terme. Les + du bien • Emplacement central recherché • Excellente luminosité • Immeuble entièrement loué • Bonne performance énergétique • Gestion simplifiée (monopropriété)
Voir plus

Référence: 3892
Honoraires d'agence de 6.72% à la charge de l'acquéreur
Appartement à TULLE
Appartement à TULLE
Appartement à TULLE
Appartement à TULLE
Appartement à TULLE
Appartement à TULLE
Appartement à TULLE
Appartement à TULLE
Appartement à TULLE
Appartement à TULLE
Appartement à TULLE
Appartement à TULLE
Appartement à TULLE
Appartement à TULLE
Géorisques

Les informations sur les risques auxquels ce bien est exposé sont disponibles sur le site Géorisques : www.georisques.gouv.fr

Ce site est protégé par hCaptcha Politique de confidentialité et Conditions d’utilisation s’appliquent.

En poursuivant votre navigation sans modifier vos paramètres, vous acceptez l'utilisation de cookies susceptibles de réaliser des statistiques de visite. Cliquez ici pour plus d'informations