Bénéficiez des services de nos partenaires locaux soigneusement sélectionnés
pour vous accompagner dans votre parcours d'achat immobilier

Appartement 109 m² à Creteil

— Creteil 94000 —
355 000 €
109 m²
4 pièces
parking

Nos partenaires locaux
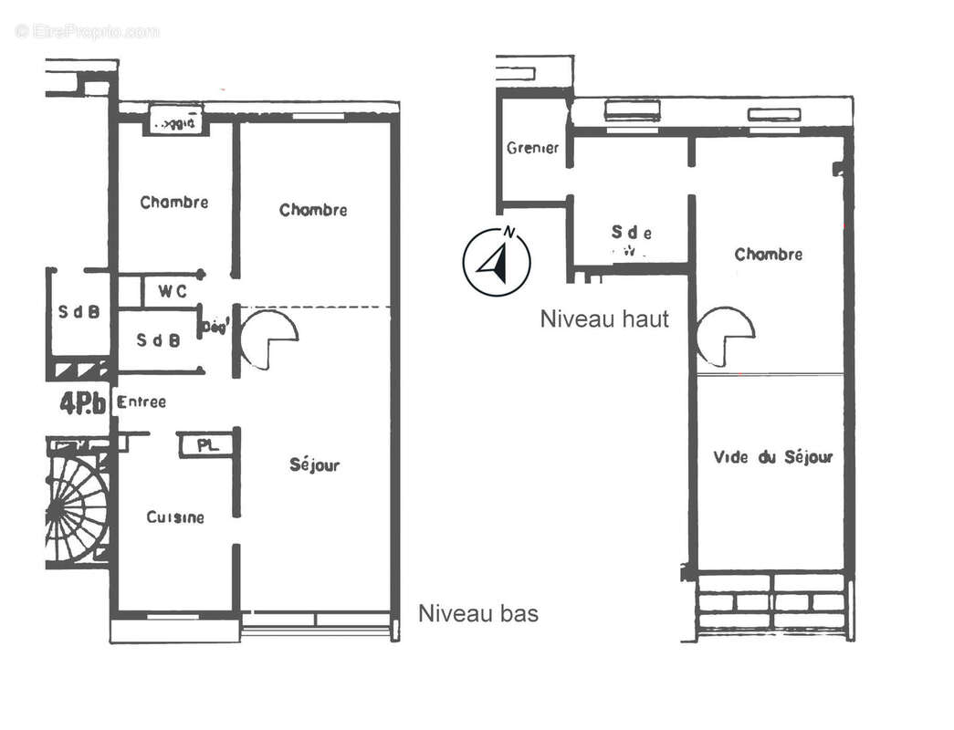
RARE: SPACIEUX DUPLEX de 121,99 m2 au sol / 109,57m2 habitables (HALAGE - BORDS DE MARNE). Dans résidence de standing avec parc et tennis Grande pièce à vivre (43,81m2), cuisine avec espace dinatoire, 2 chambres (3ème possible), bureau, deux salles d'eau, deux wc. Double box en sous-sol. Fenêtres et baies vitrée en double vitrage. Volets roulants. Proche Saint-Maur (Lycée M. Berthelot et collège Rabelais).
A 5 minutes à pied des Iles Ste Catherine et Brise-Pain. RER A Saint-Maur/Creteil à 10mn à pied. Lignes de bus (notamment les bus 104, 107, 217) qui permettent de rejoindre les gares RER (Parc de Saint-Maur ou Maisons-Alfort/Alfortville).
La Résidence La Palombière à Créteil offre un cadre de vie calme et verdoyant, des services et commodités à portée de main, et une excellente desserte en transports en commun, ce qui en fait un lieu de résidence attractif.
Voir plus

Référence: VTE-1830
Bien en copropriété. Nombre de lots : 798. Charges de copropriété : 7210 €.
Honoraires à la charge du vendeur.
Barème des honoraires
DPE
A
B
C
D
E
F
G
GES
A
B
C
D
E
F
G
Appartement à CRETEIL
Appartement à CRETEIL
Appartement à CRETEIL
Appartement à CRETEIL
Appartement à CRETEIL
Appartement à CRETEIL
Appartement à CRETEIL
Appartement à CRETEIL
Appartement à CRETEIL
Appartement à CRETEIL
Appartement à CRETEIL
Appartement à CRETEIL
Appartement à CRETEIL
Géorisques

Les informations sur les risques auxquels ce bien est exposé sont disponibles sur le site Géorisques : www.georisques.gouv.fr

Ce site est protégé par hCaptcha Politique de confidentialité et Conditions d’utilisation s’appliquent.

En poursuivant votre navigation sans modifier vos paramètres, vous acceptez l'utilisation de cookies susceptibles de réaliser des statistiques de visite. Cliquez ici pour plus d'informations