Bénéficiez des services de nos partenaires locaux soigneusement sélectionnés
pour vous accompagner dans votre parcours d'achat immobilier

Nice // mont-boron / riquier : maison 4-5 pièces entièrement rénovée / terrasse / triple exposition / proche toutes commodités

— Nice 06300 —
590 000 €
80 m²
4 pièces
parkingbalcon/terrasse

Nos partenaires locaux
NICE // MONT-BORON / RIQUIER : MAISON 4-5 PIÈCES ENTIÈREMENT RÉNOVÉE / TERRASSE / TRIPLE EXPOSITION / PROCHE TOUTES COMMODITÉS

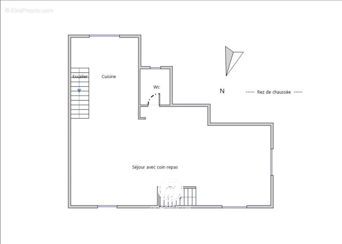
Idéalement située sur le bas du Mont-Boron, proche de la gare de Riquier et de toutes les commodités, magnifique maison de 81 m2 Carrez et 101 m2 au sol avec triple exposition.

Entièrement rénovée avec goût, cette maison offre un cadre de vie idéal grâce à ses prestations de qualité, ses espaces et sa grande terrasse de 40 m2 exposée Sud-ouest.

Édifiée sur trois niveaux, cette maison se compose au niveau principal d'un vaste séjour ensoleillé avec cuisine ouverte équipée donnant sur la terrasse et d'un toilettes indépendant, au rez-de-jardin, d'une chambre parentale avec salle de douche / toilettes et dressing et à l'étage, d'un bureau, de deux chambres mansardées et d'une deuxième salle de douche.

Ensoleillement permanent grâce à sa triple exposition, Sud-ouest, Nord-ouest, Est et ses multiples ouvertures vers l’extérieur.
Climatisation réversible, double vitrage, façade et toiture refaites.

À proximité des commerces, du tramway et à 10 min du centre commercial Carrefour TNL.

Bien en copropriété: Non


Consommation énergétiques : 125 kWhep/m2.an
Émission de gaz à effet de serre : 3 kgeqCO2/m2. an



Énergie - Montant bas estimé des dépenses annuelles pour un usage standard : 800€
Énergie - Montant haut estimé des dépenses annuelles pour un usage standard : 1160€

Les informations sur les risques auxquels ce bien est exposé sont disponibles sur le site Géorisques : georisques.gouv.fr



Les honoraires d'agence inclus dans le prix seront intégralement à la charge du vendeur.


La présente annonce immobilière a été rédigée sous la responsabilité éditoriale de l'agent commercial mandaté pour la vente de ce bien.
Voir plus

Référence: 86889532
Barème des honoraires
DPE
A
B
C
D
E
F
G
GES
A
B
C
D
E
F
G
Maison à NICE
Maison à NICE
Maison à NICE
Maison à NICE
Maison à NICE
Maison à NICE
Maison à NICE
Maison à NICE
Maison à NICE
Maison à NICE
Maison à NICE
Maison à NICE
Maison à NICE
Maison à NICE
Maison à NICE
Maison à NICE
Maison à NICE
Maison à NICE
Maison à NICE
Maison à NICE
Maison à NICE
Maison à NICE
Maison à NICE
Géorisques

Les informations sur les risques auxquels ce bien est exposé sont disponibles sur le site Géorisques : www.georisques.gouv.fr

Ce site est protégé par hCaptcha Politique de confidentialité et Conditions d’utilisation s’appliquent.

En poursuivant votre navigation sans modifier vos paramètres, vous acceptez l'utilisation de cookies susceptibles de réaliser des statistiques de visite. Cliquez ici pour plus d'informations