PERTUIS - T4 duplex 80m2 avec garage et terrasse

— Pertuis 84120 —
315 000 €
78 m² / 180 m²
4 pièces
parkingbalcon/terrassejardin

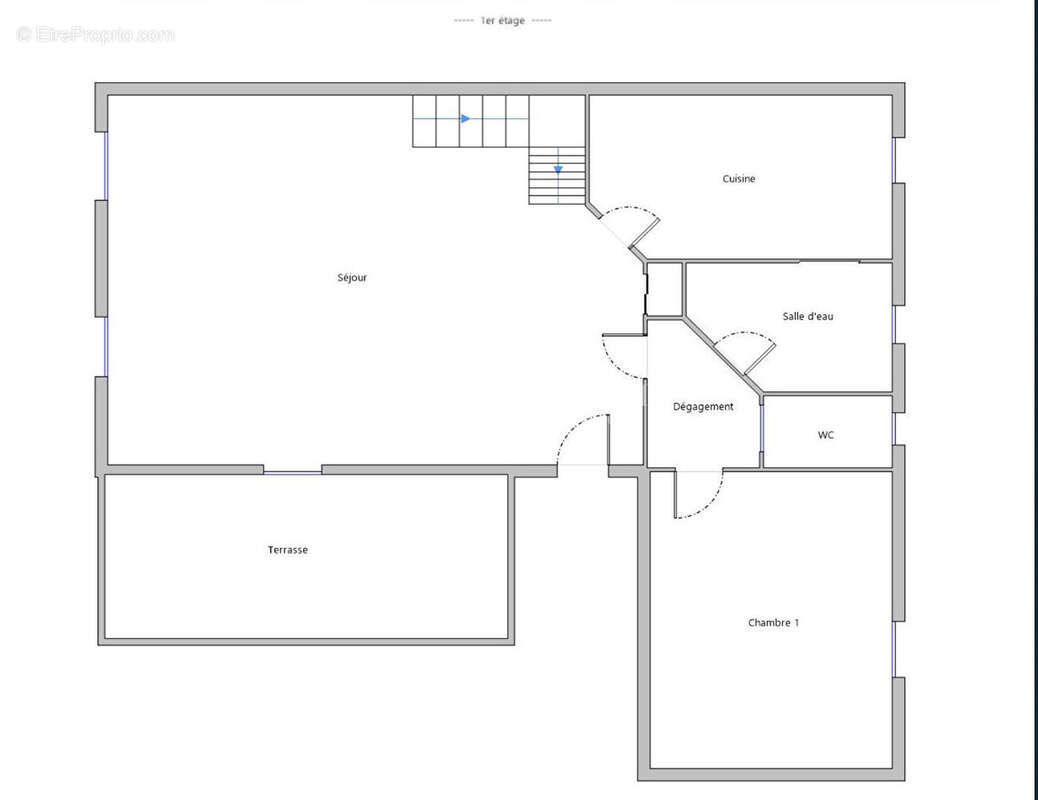
EXCLUSIVITÉ- A VENDRE PERTUIS (84120) appartement T4 duplex de 83,78m2 AVEC GARAGE ET TERRASSE (78,83m2 en Carrez) Situé à Pertuis, dans un lotissement recherché, votre Agence NADOTTI vous propose en exclusivité ce bel appartement T4 en duplex qui offre un cadre de vie agréable, alliant calme, luminosité et proximité des commerces à pied. D'une surface au sol totale de 83,78 m², ce bien se distingue par son organisation fonctionnelle et ses espaces bien répartis sur deux niveaux: Au premier niveau, vous découvrirez un séjour spacieux et lumineux ouvrant sur une terrasse semi-couverte d'environ 13 m², idéalement exposée plein Sud, une cuisine toute équipée, une chambre avec dressing, une salle de d'eau, un WC indépendant. A l'étage : une chambre supplémentaire, un bureau ou une 3ème chambre, et une salle d'eau avec WC offrant un espace nuit distinct et fonctionnel. Vous apprécierez sa terrasse exposée Sud, son garage fermé sécurisé, ainsi qu'une place de stationnement privative et ses rénovations. Vous serez également séduit par ses faibles charges de copropriété et l'absence de procédure garantissant un cadre juridique serein. Ce bien offre un équilibre recherché entre confort, situation et qualité de vie, constituant ainsi une opportunité idéale pour une résidence principale ou un investissement de qualité. Prix : 315000 euros honoraires inclus charge vendeur. Pour plus d'informations ou organiser une visite, contactez-nous. Copropriété de 57 lots. Charges annuelles : 70 euros.
Voir plus

Référence: 729
Bien en copropriété. Nombre de lots : 57. Charges de copropriété : 70 €.
Honoraires à la charge du vendeur.
DPE
A
B
C
D
E
F
G
GES
A
B
C
D
E
F
G
Maison à PERTUIS
Maison à PERTUIS
Maison à PERTUIS
Maison à PERTUIS
Maison à PERTUIS
Maison à PERTUIS
Maison à PERTUIS
Maison à PERTUIS
Maison à PERTUIS
Maison à PERTUIS
Maison à PERTUIS
Maison à PERTUIS
Maison à PERTUIS
Maison à PERTUIS
Maison à PERTUIS
Maison à PERTUIS
Géorisques

Les informations sur les risques auxquels ce bien est exposé sont disponibles sur le site Géorisques : www.georisques.gouv.fr

Ce site est protégé par hCaptcha Politique de confidentialité et Conditions d’utilisation s’appliquent.

En poursuivant votre navigation sans modifier vos paramètres, vous acceptez l'utilisation de cookies susceptibles de réaliser des statistiques de visite. Cliquez ici pour plus d'informations