Bénéficiez des services de nos partenaires locaux soigneusement sélectionnés
pour vous accompagner dans votre parcours d'achat immobilier

Saint cloud - coteaux

— Saint-Cloud 92210 —
1 664 000 €
271 m²
4 pièces
parkingbalcon/terrasseascenseur

Nos partenaires locaux
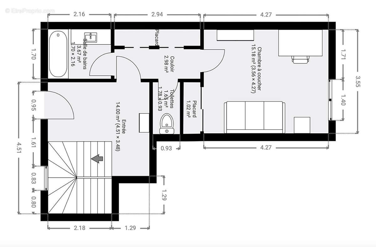
L'agence FRED?LION Butte-aux-Cailles a le plaisir de vous dévoiler ce duplex d'exception aux volumes rares, développant une surface pondérée de 271 m² pour 176 m² loi Carrez et 257 m² au sol. Idéalement situé dans le quartier prisé des Coteaux, cet appartement de caractère profite d'une proximité immédiate avec le centre-ville, les bords de Seine et le Domaine de Saint-Cloud. Élevé sur deux niveaux, ce bien se distingue par une luminosité constante grâce à une orientation Est privilégiée qui laisse apparaître la tour Eiffel en toile de fond. Le premier niveau accueille un hall d'entrée menant à une suite indépendante avec salle de bains et WC, offrant un espace parfaitement isolé pour un adolescent ou des invités. A l'étage supérieur, vous découvrirez une vaste réception de 56 m² baignée de lumière s'ouvrant sur une terrasse de 43 m² sans vis-à-vis. Ce niveau comprend également une cuisine indépendante ainsi que deux chambres spacieuses disposant chacune de leur propre salle de bains et WC, l'une bénéficiant d'un dressing et l'autre d'un accès à un jardin-terrasse privatif. Le potentiel de ce logement est complété par un grand cellier aménageable de 76 m² en rez-de-jardin, offrant la liberté de créer une salle de sport, un espace de télétravail ou des chambres additionnelles selon vos besoins. Cet espace donne un accès direct à un magnifique jardin à usage exclusif de 125 m², véritable havre de paix pour la période estivale. Une cave et deux places de parking viennent parfaire cet ensemble rare au sein d'une copropriété atypique. Enfin, la situation géographique est optimale avec un accès rapide aux lignes L, U et T2, ainsi qu'une valorisation future garantie par l'arrivée de la ligne 15 du Grand Paris Express prévue à l'horizon 2031. (4.00 % honoraires TTC à la charge de l'acquéreur.) Copropriété de 36 lots - dont 10 lots habitation. Charges annuelles : 8734 euros.
Voir plus

Référence: 339
Bien en copropriété. Nombre de lots : 36. Charges de copropriété : 8734 €.
Honoraires d'agence de 4% à la charge de l'acquéreur
Barème des honoraires
DPE
A
B
C
D
E
F
G
GES
A
B
C
D
E
F
G
Appartement à SAINT-CLOUD
Appartement à SAINT-CLOUD
Appartement à SAINT-CLOUD
Appartement à SAINT-CLOUD
Appartement à SAINT-CLOUD
Appartement à SAINT-CLOUD
Appartement à SAINT-CLOUD
Appartement à SAINT-CLOUD
Appartement à SAINT-CLOUD
Appartement à SAINT-CLOUD
Appartement à SAINT-CLOUD
Appartement à SAINT-CLOUD
Appartement à SAINT-CLOUD
Appartement à SAINT-CLOUD
Appartement à SAINT-CLOUD
Appartement à SAINT-CLOUD
Appartement à SAINT-CLOUD
Géorisques

Les informations sur les risques auxquels ce bien est exposé sont disponibles sur le site Géorisques : www.georisques.gouv.fr

Ce site est protégé par hCaptcha Politique de confidentialité et Conditions d’utilisation s’appliquent.

En poursuivant votre navigation sans modifier vos paramètres, vous acceptez l'utilisation de cookies susceptibles de réaliser des statistiques de visite. Cliquez ici pour plus d'informations