Maison nanterre - coeur de ville

— Nanterre 92000 —
1 260 000 €
250 m²
8 pièces
parking

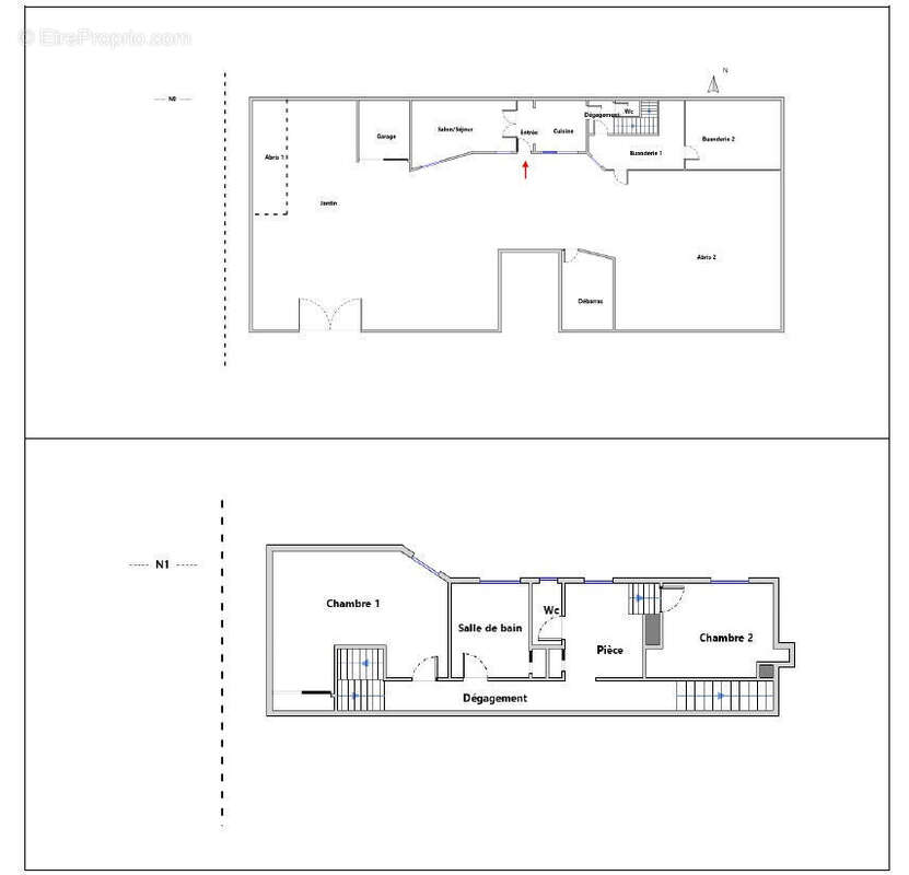
Les Agences de Vallière vous proposent cet ensemble immobilier atypique comprenant une maison principale, une cave et un grand hangar, édifiés sur une parcelle de 435 m², idéalement situé en coeur de ville à Nanterre. Ce bien offre un fort potentiel d'agrandissement et de réaménagement, parfaitement adapté à un projet de transformation ou de valorisation. Certaines illustrations présentées dans l'annonce constituent des projections réalisées à l'aide d'intelligence artificielle, permettant de visualiser le potentiel du bien après travaux. Elles ne reflètent pas l'état actuel et n'ont qu'une valeur indicative. Des travaux importants sont à prévoir, impliquant un investissement conséquent (que nous avons estimé et inclus dans le prix de vente; le prix d'achat sans travaux est de 850 000 euros). Une Exclusivité des Agences de Vallière. (5.00 % honoraires TTC à la charge de l'acquéreur.)
Voir plus

Honoraires d'agence de 5% à la charge de l'acquéreur
Barème des honoraires
Maison à NANTERRE
Maison à NANTERRE
Maison à NANTERRE
Maison à NANTERRE
Maison à NANTERRE
Géorisques

Les informations sur les risques auxquels ce bien est exposé sont disponibles sur le site Géorisques : www.georisques.gouv.fr

Ce site est protégé par hCaptcha Politique de confidentialité et Conditions d’utilisation s’appliquent.

En poursuivant votre navigation sans modifier vos paramètres, vous acceptez l'utilisation de cookies susceptibles de réaliser des statistiques de visite. Cliquez ici pour plus d'informations