Bénéficiez des services de nos partenaires locaux soigneusement sélectionnés
pour vous accompagner dans votre parcours d'achat immobilier

Appartement 4 pièces - XIVème PARIS

— Paris-14e 75014 —
1 440 000 €
96 m²
4 pièces
balcon/terrasseascenseur

Nos partenaires locaux
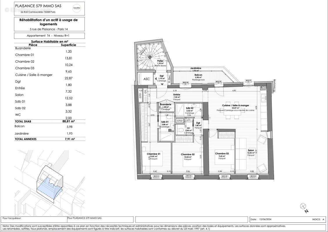
VIR (Vente d'Immeuble à Rénover) : Au 1er étage avec ascenseur d'un immeuble ancien réhabilité, de très bon standing à deux pas du métro Pernety, au cœur d'un quartier commerçant, un appartement quatre pièces de 96,30 m2 loi Carrez comprenant, une entrée, un séjour, une cuisine ouverte aménagée et équipée ouvrant sur un balcon, une buanderie, trois chambres, deux salles de bains et WC séparé.
Grand local vélo / poussettes au RDC et caves accessibles par ascenseur au sous-sol. Professions libérales autorisées.
Tout le charme de l'ancien avec les avantages des constructions modernes.
Création d'espaces extérieurs et végétalisés, pour ainsi contribuer à la qualité des logements, au rafraichissement urbain et la continuité végétale
Voir plus

Référence: 85819776A
Bien en copropriété. Nombre de lots : 7.
Honoraires d'agence de 3.73% à la charge de l'acquéreur
Appartement à PARIS-14E
Appartement à PARIS-14E
Appartement à PARIS-14E
Appartement à PARIS-14E
Géorisques

Les informations sur les risques auxquels ce bien est exposé sont disponibles sur le site Géorisques : www.georisques.gouv.fr

Ce site est protégé par hCaptcha Politique de confidentialité et Conditions d’utilisation s’appliquent.

En poursuivant votre navigation sans modifier vos paramètres, vous acceptez l'utilisation de cookies susceptibles de réaliser des statistiques de visite. Cliquez ici pour plus d'informations