Bénéficiez des services de nos partenaires locaux soigneusement sélectionnés
pour vous accompagner dans votre parcours d'achat immobilier

Appartement 3 pièces - XIVème

— Paris-14e 75014 —
1 195 000 €
95 m²
3 pièces
jardinascenseur

Nos partenaires locaux
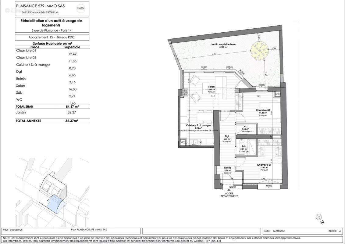
VIR (Vente d'Immeuble à Rénover) : Au rez de chaussée d'un immeuble ancien réhabilité, de très bon standing à deux pas du métro Pernety, au cœur d'un quartier commerçant, un appartement trois pièces de 63,15 m2 loi Carrez comprenant, une entrée, un séjour, une cuisine ouverte aménagée et équipée ouvrant sur un jardin de 32,35 m2, deux chambres, une salle de bains et WC séparé.
Grand local vélo / poussettes au RDC et caves accessibles par ascenseur au sous-sol. Professions libérales autorisées.
Tout le charme de l'ancien avec les avantages des constructions modernes.
Création d'espaces extérieurs et végétalisés, pour ainsi contribuer à la qualité des logements, au rafraichissement urbain et la continuité végétale
Voir plus

Référence: 85819775A
Bien en copropriété. Nombre de lots : 7.
Honoraires d'agence de 3.73% à la charge de l'acquéreur
Appartement à PARIS-14E
Appartement à PARIS-14E
Appartement à PARIS-14E
Appartement à PARIS-14E
Géorisques

Les informations sur les risques auxquels ce bien est exposé sont disponibles sur le site Géorisques : www.georisques.gouv.fr

Ce site est protégé par hCaptcha Politique de confidentialité et Conditions d’utilisation s’appliquent.

En poursuivant votre navigation sans modifier vos paramètres, vous acceptez l'utilisation de cookies susceptibles de réaliser des statistiques de visite. Cliquez ici pour plus d'informations