A 1 km de la gare, villa mitoyenne neuve

— Perrignier 74550 —
485 000 €
95 m² / 325 m²
4 pièces
jardin

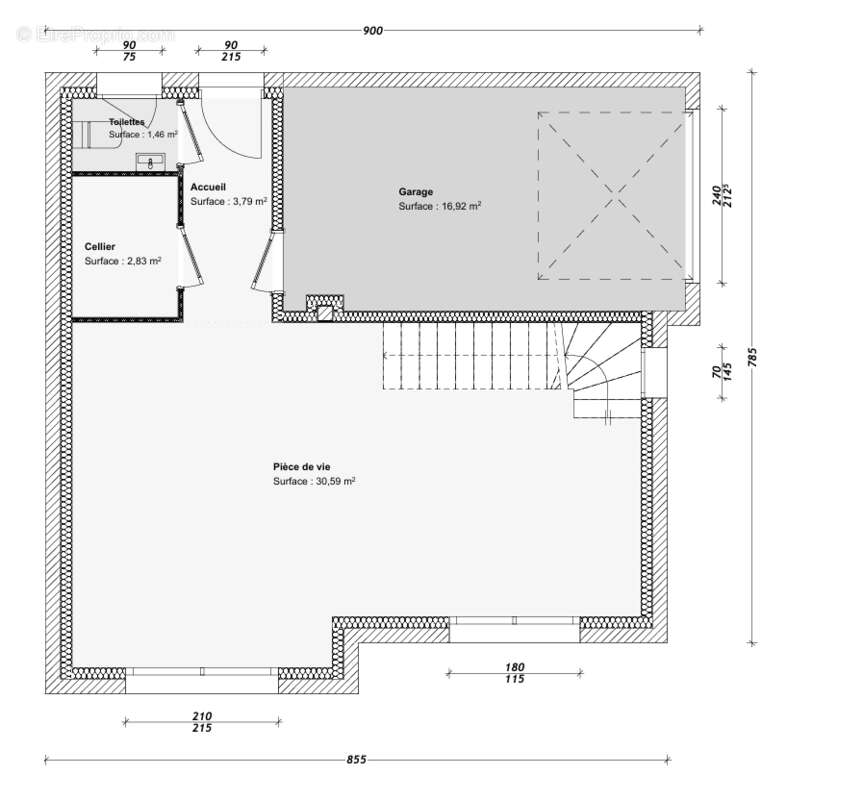
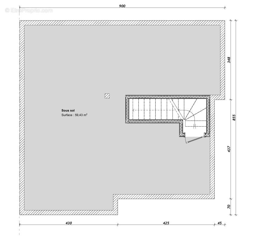
Idéalement située dans un quartier calme de Perrignier, à seulement 1 km de la gare et du centre du village, venez découvrir cette villa mitoyenne de 95 m² Sur un terrain de 325 M2, la villa se compose d'un rez-de-chaussée comprenant une pièce de vie de 30.59 M2, un cellier, un WC séparé et un garage de 17 m² A l'étage, 3 chambres dont une de 15.82 M2 et une salle de bains Pour finir, un sous-sol complet aménageable selon vos envie de 59 m² La villa est conforme norme RE2020 avec contrat CCMI Il faudra prévoit la taxe aménagement et raccordement, peinture, parquet, cuisine et embellissement en supplément Pour plus d'informations ou pour organiser une visite, contactez-moi dès maintenant : Maéva Roy-Ruffier, Agente commerciale, EI enregistré au RSAC de Thonon-les-Bains sous le n°928 561 042 O618721655 [Coordonnées masquées]
Voir plus

Référence: 1758
Honoraires à la charge du vendeur.
Barème des honoraires
Maison à PERRIGNIER
Maison à PERRIGNIER
Maison à PERRIGNIER
Maison à PERRIGNIER
Maison à PERRIGNIER
Maison à PERRIGNIER
Maison à PERRIGNIER
Maison à PERRIGNIER
Maison à PERRIGNIER
Géorisques

Les informations sur les risques auxquels ce bien est exposé sont disponibles sur le site Géorisques : www.georisques.gouv.fr

Ce site est protégé par hCaptcha Politique de confidentialité et Conditions d’utilisation s’appliquent.

En poursuivant votre navigation sans modifier vos paramètres, vous acceptez l'utilisation de cookies susceptibles de réaliser des statistiques de visite. Cliquez ici pour plus d'informations