Bénéficiez des services de nos partenaires locaux soigneusement sélectionnés
pour vous accompagner dans votre parcours d'achat immobilier

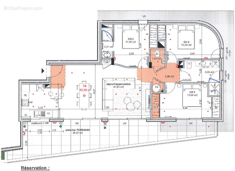
Appartement 4 pièces Dernier étage Vue mer Carqueiranne

— Carqueiranne 83320 —
995 000 €
93 m²
4 pièces
parkingbalcon/terrasse

Nos partenaires locaux
À proximité immédiate du centre-ville de Carqueiranne, découvrez ce superbe appartement de 93 m2 situé au 2ème et dernier étage d’une résidence avec ascenseur.
Ce bien, dont la livraison est prévue en juin 2026, offre des prestations de qualité et un agencement idéal. Il se compose d’un bel espace de vie lumineux, de trois chambres confortables, ainsi que de deux salles d’eau modernes.
Vous serez séduits par sa très belle terrasse exposée sud-est, parfaite pour profiter du soleil et d’une magnifique vue mer. vendu avec un garage double.
Voir plus

Référence: 9482
Bien en copropriété. Nombre de lots : 8.
DPE
A
B
C
D
E
F
G
GES
A
B
C
D
E
F
G
Appartement à CARQUEIRANNE
Appartement à CARQUEIRANNE
Géorisques

Les informations sur les risques auxquels ce bien est exposé sont disponibles sur le site Géorisques : www.georisques.gouv.fr

Ce site est protégé par hCaptcha Politique de confidentialité et Conditions d’utilisation s’appliquent.

En poursuivant votre navigation sans modifier vos paramètres, vous acceptez l'utilisation de cookies susceptibles de réaliser des statistiques de visite. Cliquez ici pour plus d'informations