Bénéficiez des services de nos partenaires locaux soigneusement sélectionnés
pour vous accompagner dans votre parcours d'achat immobilier

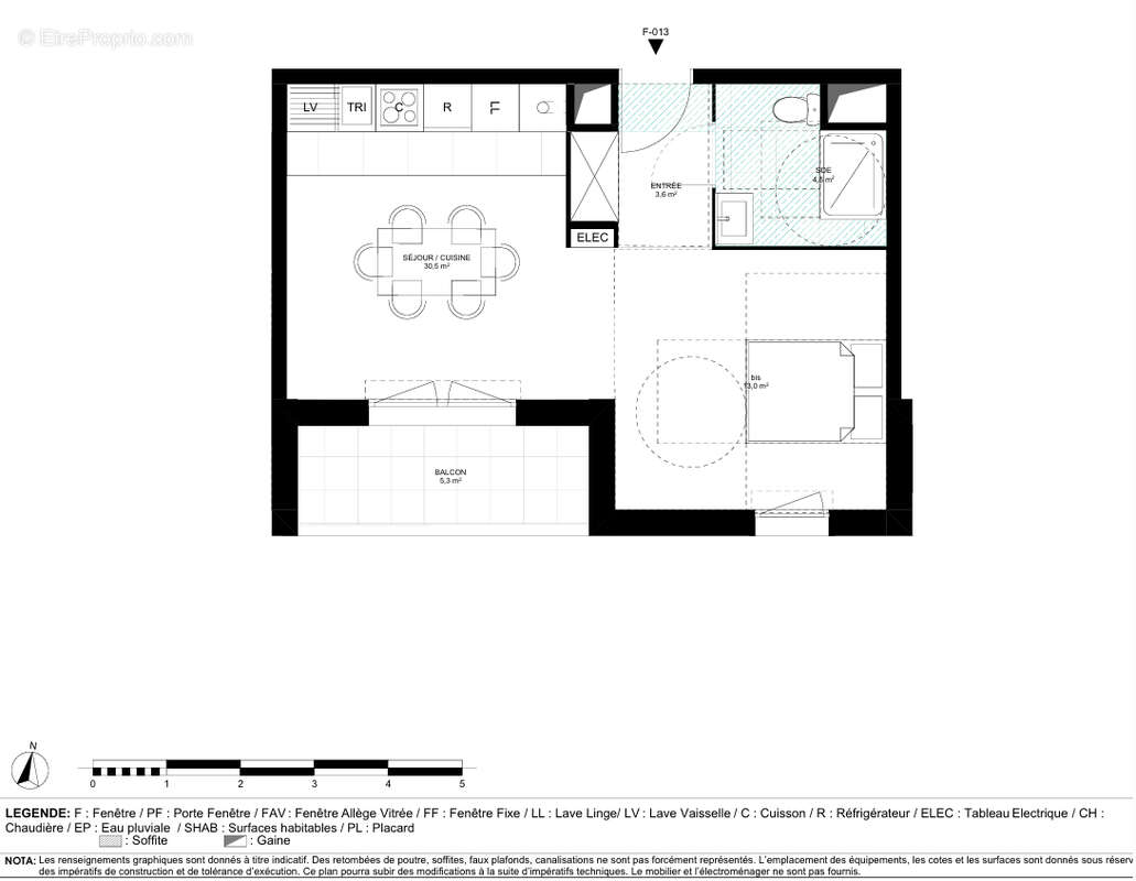
Appartement Ouistreham 1 pièce(s) 38.6 m2

— Ouistreham 14150 —
182 000 €
38 m²
1 pièce
ascenseur

Nos partenaires locaux
Situé à Ouistreham, dans un secteur résidentiel calme à proximité immédiate des commerces et à quelques minutes de la plage, découvrez cet appartement T1 Bis de 38,60 m². Au 1er étage d'une résidence à taille humaine, il se compose d'une entrée avec rangement, d'une belle pièce de vie avec cuisine ouverte de plus de 30 m², offrant un espace confortable et lumineux, ainsi que d'un espace nuit distinct. Une salle d'eau avec WC complète l'ensemble. Vous bénéficierez également d'un balcon de 5,30 m² exposé plein Sud, idéal pour profiter des extérieurs. Prestations actuelles : chauffage individuel, menuiseries PVC, volets roulants, résidence sécurisée. Stationnement extérieur. Disponible à horizon 2028 Prix : 182 000 euros FAI
Voir plus

Référence: 14084
Honoraires à la charge du vendeur.
Barème des honoraires
Appartement à OUISTREHAM
Appartement à OUISTREHAM
Appartement à OUISTREHAM
Géorisques

Les informations sur les risques auxquels ce bien est exposé sont disponibles sur le site Géorisques : www.georisques.gouv.fr

Ce site est protégé par hCaptcha Politique de confidentialité et Conditions d’utilisation s’appliquent.

En poursuivant votre navigation sans modifier vos paramètres, vous acceptez l'utilisation de cookies susceptibles de réaliser des statistiques de visite. Cliquez ici pour plus d'informations