Bénéficiez des services de nos partenaires locaux soigneusement sélectionnés
pour vous accompagner dans votre parcours d'achat immobilier

Maison Martigues 6 pièces 263 m2

— Martigues 13500 —
499 000 €
263 m² / 635 m²
6 pièces
parkingjardin

Nos partenaires locaux
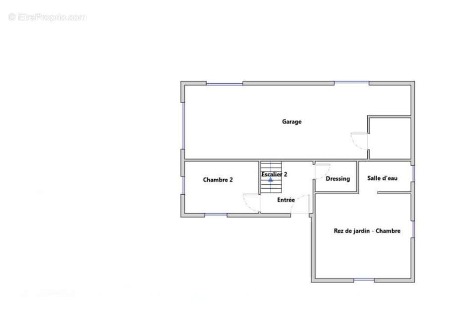
L'agence immobilière Mykasa Martigues vous propose en exclusivité une très jolie bâtisse de 263 m² environ sur un terrain de 639 m². Elle est composée d'une habitation , d'une dépendance et de 2 garages. Vous accèderez à la maison par un bel escalier donnant directement sur une entrée et sa grande pièce de vie très lumineuse de plus de 41 m². Vous serez séduit par le double séjour (salon/salle à manger) très agréable et sa cuisine indépendante aménagée. Côté nuit, vous retrouverez 2 chambres et une salle d'eau très fonctionnelle et une chambre parentale mansardée à l'étage. En dessous, en rdc, (accessible par un escalier intérieur) vous pourrez profiter de 2 chambres supplémentaires et d'une salle de bains ou alors vous aurez la possibilité de créer une dépendance totalement autonome. Vous bénéficierez également d'un immense garage de 43 m² sous la maison et d'un 2ème garage sur le terrain. Cette maison est située sur le secteur de Martigues Jonquières à deux pas du centre ville et de toutes les commodités. Pour plus d'informations contacter Laurence au [Coordonnées masquées]
Voir plus

Référence: 0596
Honoraires à la charge du vendeur.
Barème des honoraires
DPE
A
B
C
D
E
F
G
GES
A
B
C
D
E
F
G
Maison à MARTIGUES
Maison à MARTIGUES
Maison à MARTIGUES
Maison à MARTIGUES
Maison à MARTIGUES
Maison à MARTIGUES
Maison à MARTIGUES
Maison à MARTIGUES
Maison à MARTIGUES
Maison à MARTIGUES
Maison à MARTIGUES
Maison à MARTIGUES
Maison à MARTIGUES
Maison à MARTIGUES
Géorisques

Les informations sur les risques auxquels ce bien est exposé sont disponibles sur le site Géorisques : www.georisques.gouv.fr

Ce site est protégé par hCaptcha Politique de confidentialité et Conditions d’utilisation s’appliquent.

En poursuivant votre navigation sans modifier vos paramètres, vous acceptez l'utilisation de cookies susceptibles de réaliser des statistiques de visite. Cliquez ici pour plus d'informations