Bénéficiez des services de nos partenaires locaux soigneusement sélectionnés
pour vous accompagner dans votre parcours d'achat immobilier

Appartement avec terrasse et jardinet - Immeuble récent Secteur recherché

— Paris-20e 75020 —
299 000 €
31 m²
2 pièces
parkingbalcon/terrasse

Nos partenaires locaux
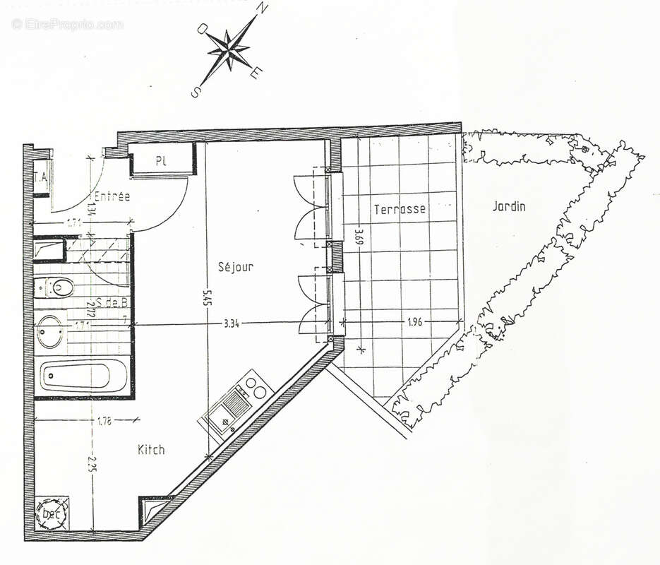
Dans un environnement agréable et recherché, découvrez ce charmant appartement intelligement pensé avec coin nuit, en rez-de-jardin, situé au sein d’un immeuble récent (2002) bien entretenu.
Ce bien se distingue par son extérieur privatif, véritable prolongement de l’espace de vie, ainsi que par son emplacement de qualité à proximité immédiate des commerces et des transports. Situé dans un quartier dynamique et apprécié, l’appartement bénéficie d’un cadre de vie idéal, alliant accessibilité, commerces de proximité et vie de quartier.
L’atout majeur de ce bien réside dans sa terrasse prolongée par un jardinet privatif, offrant un espace extérieur calme et agréable, idéal pour profiter des beaux jours !
D’une surface de 27 m2, l’appartement se compose d'une entrée, d'une pièce de vie avec kitchenette semi-équipée, ouvrant sur la terrasse et le jardin, d'un espace nuit et d'une salle de bain avec WC. L’agencement fonctionnel et optimisé, permet une utilisation confortable de chaque espace.
L'appartement est vendu avec cave et place de parking en sous-sol !
Contact : Rémy Cambe [Coordonnées masquées]
H&B Immobilier, immatriculée au RCS de Paris sous le numéro 882 014 889. Les informations sur les risques auxquels ce bien est exposé sont disponibles sur le site géorisques.gouv
Voir plus

Référence: 1262
Honoraires d'agence de 4.18% à la charge de l'acquéreur
Barème des honoraires
Appartement à PARIS-20E
Appartement à PARIS-20E
Appartement à PARIS-20E
Appartement à PARIS-20E
Appartement à PARIS-20E
Appartement à PARIS-20E
Appartement à PARIS-20E
Appartement à PARIS-20E
Appartement à PARIS-20E
Appartement à PARIS-20E
Appartement à PARIS-20E
Appartement à PARIS-20E
Appartement à PARIS-20E
Géorisques

Les informations sur les risques auxquels ce bien est exposé sont disponibles sur le site Géorisques : www.georisques.gouv.fr

Ce site est protégé par hCaptcha Politique de confidentialité et Conditions d’utilisation s’appliquent.

En poursuivant votre navigation sans modifier vos paramètres, vous acceptez l'utilisation de cookies susceptibles de réaliser des statistiques de visite. Cliquez ici pour plus d'informations