LE FAOU - A VENDRE ? Bâtiment exceptionnel aux portes de la RN165

— Le Faou 29590 —
551 000 €
335 m²
15 pièces

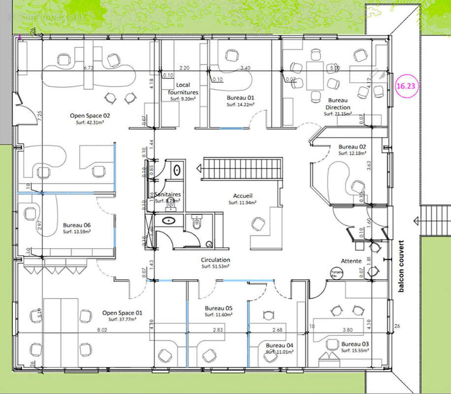
LE FAOU - A VENDRE ? Bâtiment exceptionnel aux portes de la RN165 Idéalement situé à proximité immédiate de la RN165, ce bâtiment technique et parfaitement entretenu développe 335 m² de surface plancher, offrant un potentiel d'exploitation rare sur le secteur. Construit avec des matériaux durables et performants, il se compose de : Rez-de-jardin : 74,25 m² Rez-de-chaussée : 261,23 m² 1er niveau en béton banché avec dalle béton isolée 2e niveau en charpente métallique et plancher béton isolé Bardage haute performance : panneaux sandwich 60 mm, vêture Trespa, bardage prélaqué sinusoïdal Toiture PVC avec isolation 60 mm Le bâtiment affiche un DPE C (152 kWh/m²/an) et bénéficie d'équipements techniques récents et économes : Pompe à chaleur Panneaux solaires photovoltaïques Onduleur neuf Production photovoltaïque : En fonctionnement depuis 2008, les panneaux génèrent environ 2 000 euros HT/an revendus à EDF dans le cadre d'un contrat de 20 ans arrivant à échéance le 3 septembre 2029. A l'issue du contrat, le futur propriétaire pourra proposer au locataire une autoconsommation ou renégocier un nouveau contrat. Atout rare : possibilité d'extension à l'Ouest, permettant d'adapter le site à de nouveaux besoins ou de valoriser le bien par une surface supplémentaire. Un bâtiment technique, robuste, visible et évolutif, idéal pour une entreprise recherchant un emplacement stratégique, une excellente performance énergétique et une valorisation solaire déjà en place. A saisir : opportunité unique sur le secteur du Faou. (5.96 % honoraires TTC à la charge de l'acquéreur.)
Voir plus

Référence: 406
Honoraires d'agence de 5.96% à la charge de l'acquéreur
Barème des honoraires
Commerce à LE FAOU
Commerce à LE FAOU
Commerce à LE FAOU
Commerce à LE FAOU
Commerce à LE FAOU
Commerce à LE FAOU
Géorisques

Les informations sur les risques auxquels ce bien est exposé sont disponibles sur le site Géorisques : www.georisques.gouv.fr

Ce site est protégé par hCaptcha Politique de confidentialité et Conditions d’utilisation s’appliquent.

En poursuivant votre navigation sans modifier vos paramètres, vous acceptez l'utilisation de cookies susceptibles de réaliser des statistiques de visite. Cliquez ici pour plus d'informations