Bénéficiez des services de nos partenaires locaux soigneusement sélectionnés
pour vous accompagner dans votre parcours d'achat immobilier

Maison 200 m² à Castelsarrasin

— Castelsarrasin 82100 —
299 900 €
200 m² / 2 459 m²
6 pièces
jardin

Nos partenaires locaux
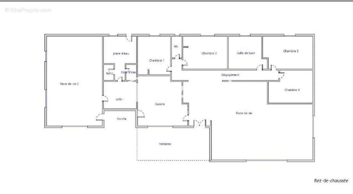
Située à Castelsarrasin (82100) à 5min du centre ville en campagne, cette propriété de 200 m² offre un cadre de vie paisible et convivial, propice à la tranquillité. Dotée d'une belle surface de terrain de 2459 m² entièrement clôturée, constructible, piscinable avec un puits, elle bénéficie d'une localisation idéale, à proximité des commerces, écoles et services essentiels, 10 min de l'autoroute, 40min de Toulouse, offrant ainsi un quotidien pratique et agréable. Composée d'une première entrée de 145 m² et d'une deuxième de 57 m², cette villa moderne de plain-pied construite en 2007 est adaptée à une belle vie familiale et aux travailleurs à domicile. La maison comprend 4 chambres dont 3 de 12 à 15 m² et une utilisée en dressing de 9,50 m², avec un séjour lumineux de près de 50 m² donnant sur une terrasse couverte agréable exposée SE. Une belle cuisine équipée de 16 m², une salle de bain double vasque-baignoire-douche à l'italienne de 8,70 m² et un WC complètent le confort de la maison. Côté dépendance, vous entrez directement dans le séjour-cuisine ouverte de près de 40 m² où un lit d'appoint pourra être installé. Un cellier, WC et salle d'eau avec cabine de douche complètent cette dépendance. La maison est tout confort avec ces menuiseries alu double vitrage + volets roulants, sa PAC gainable réversible air-air et sa faible consommation énergétique. Les valises n'ont plus qu'à être posées ! Les informations sur les risques auxquels ce bien est exposé sont disponibles sur le site Géorisques : www.georisques.gouv.frPrix de vente : 299 900 ¤Honoraires charge vendeurContactez votre conseiller SAFTI : Rémi PESSET, Tél. : [Coordonnées masquées], E-mail : [Coordonnées masquées] - EI - Agent commercial immatriculé au RSAC de MONTAUBAN sous le numéro 942599630.Informations LOI ALUR : Honoraires charge vendeur. (gedeon_26118_33042043)
Voir plus

Référence: 1634140
Honoraires à la charge du vendeur.
Barème des honoraires
DPE
A
B
C
D
E
F
G
GES
A
B
C
D
E
F
G
Photo 1 - Maison à CASTELSARRASIN
Photo 1
Photo 2 - Maison à CASTELSARRASIN
Photo 2
Photo 3 - Maison à CASTELSARRASIN
Photo 3
Photo 4 - Maison à CASTELSARRASIN
Photo 4
Photo 5 - Maison à CASTELSARRASIN
Photo 5
Photo 6 - Maison à CASTELSARRASIN
Photo 6
Photo 7 - Maison à CASTELSARRASIN
Photo 7
Photo 8 - Maison à CASTELSARRASIN
Photo 8
Photo 9 - Maison à CASTELSARRASIN
Photo 9
Géorisques

Les informations sur les risques auxquels ce bien est exposé sont disponibles sur le site Géorisques : www.georisques.gouv.fr

Ce site est protégé par hCaptcha Politique de confidentialité et Conditions d’utilisation s’appliquent.

En poursuivant votre navigation sans modifier vos paramètres, vous acceptez l'utilisation de cookies susceptibles de réaliser des statistiques de visite. Cliquez ici pour plus d'informations