Bénéficiez des services de nos partenaires locaux soigneusement sélectionnés
pour vous accompagner dans votre parcours d'achat immobilier

Appartement 57 m² à Courbevoie

— Courbevoie 92400 —
479 000 €
57 m²
3 pièces
balcon/terrasseascenseur

Nos partenaires locaux
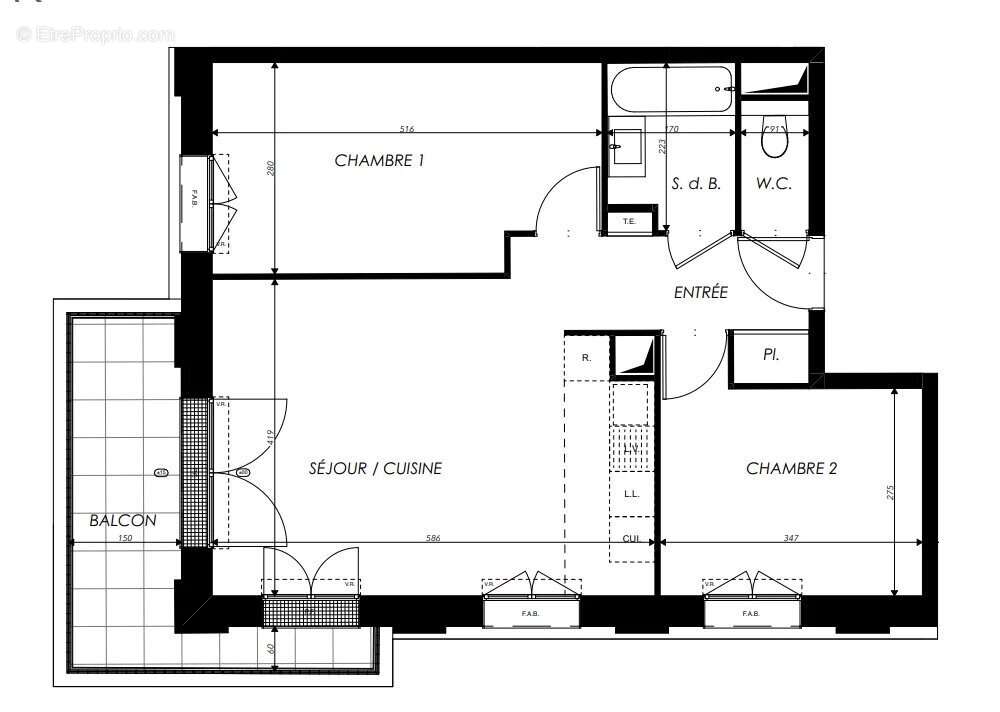
Appartement T3 à Courbevoie Idéalement situé à Courbevoie, cet appartement se compose d'un séjour/cuisine de 24,54 m2, de deux chambres d'une salle de bains d'un balcon de 8,60m2 Le prix affiché est sur une base de TVA à 10% (voir si éligibilité. Pour plus d'information, merci de nous contacter directement, plusieurs appartements sont disponibles.

Référence: 92COURBKAUFKOYC23
Barème des honoraires
DPE
A
B
C
D
E
F
G
GES
A
B
C
D
E
F
G
Appartement à COURBEVOIE
Appartement à COURBEVOIE
Appartement à COURBEVOIE
Appartement à COURBEVOIE
Géorisques

Les informations sur les risques auxquels ce bien est exposé sont disponibles sur le site Géorisques : www.georisques.gouv.fr

Ce site est protégé par hCaptcha Politique de confidentialité et Conditions d’utilisation s’appliquent.

En poursuivant votre navigation sans modifier vos paramètres, vous acceptez l'utilisation de cookies susceptibles de réaliser des statistiques de visite. Cliquez ici pour plus d'informations