Bénéficiez des services de nos partenaires locaux soigneusement sélectionnés
pour vous accompagner dans votre parcours d'achat immobilier

Commerce 469 m² à Baigneux-Les-Juifs

— Baigneux-Les-Juifs 21450 —
158 400 €
469 m²

Nos partenaires locaux
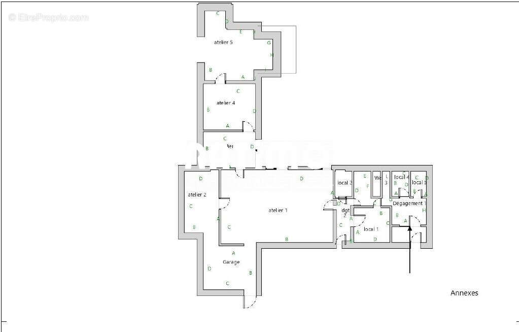
À Baigneux-les-Juifs, au sein de la Z.A.E du Val de Seine,
cet ensemble immobilier récent (2016) offre une opportunité rare pour les artisans et entrepreneurs souhaitant allier outil de travail performant et espace de vie ou bureaux.
Pensé pour une activité spécialisée, le rez-de-chaussée propose des installations complètes :
atelier de taille de pierre,
espace de sciage et débit,
bacs de décantation,
salle de traçage,
magasin d'outillage,
vestiaires,
espace de stockage.
À l'étage, un volume confortable avec dalle de Bourgogne laisse place à de nombreuses possibilités d'aménagement :
bureaux ou chambres,
séjour avec cheminée,
cuisine,
salle de douches,
cellier,
salle de pose,
deux salles d'archives.
?pour la partie du 1er étage : Les espaces sont modulables et facilement redistribuables, permettant d'adapter le bien à votre activité ou à un usage mixte.
À l'extérieur, vous bénéficiez d'un grand parking et d'aires de stockage, idéales pour une activité nécessitant accessibilité et logistique.
?? Des travaux de remise à jour sont à prévoir, offrant l'opportunité de repenser les lieux à votre image et d'en révéler tout le potentiel.
Les atouts :
Construction récente (2016)
Ensemble professionnel complet
Fort potentiel d'aménagement
Double usage possible (activité + habitation/bureaux)
ce type de bien est très recherché par les professionnels souhaitant regrouper leur activité et leur lieu de vie. La configuration s'y prête parfaitement, sous réserve des démarches administratives.
CONTACT: NATHALIE LACOMBE [Coordonnées masquées] [Coordonnées masquées]
www.agencenatimo.com
RCS: 989300090 & CPI 21[Coordonnées masquées]015.
AGENCE IMMOBILIERE NATIMO
RCS: 989300090
CPI 21[Coordonnées masquées]015
Voir plus

Référence: VP066-LACOMBE
Honoraires d'agence de 7.03% à la charge de l'acquéreur
Barème des honoraires
DPE
A
B
C
D
E
F
G
GES
A
B
C
D
E
F
G
Commerce à BAIGNEUX-LES-JUIFS
Commerce à BAIGNEUX-LES-JUIFS
Commerce à BAIGNEUX-LES-JUIFS
Commerce à BAIGNEUX-LES-JUIFS
Commerce à BAIGNEUX-LES-JUIFS
Commerce à BAIGNEUX-LES-JUIFS
Commerce à BAIGNEUX-LES-JUIFS
Commerce à BAIGNEUX-LES-JUIFS
Commerce à BAIGNEUX-LES-JUIFS
Géorisques

Les informations sur les risques auxquels ce bien est exposé sont disponibles sur le site Géorisques : www.georisques.gouv.fr

Ce site est protégé par hCaptcha Politique de confidentialité et Conditions d’utilisation s’appliquent.