Maison 95 m² à Bressols

— Bressols 82710 —
199 700 €
95 m² / 130 m²
4 pièces
parkingbalcon/terrassejardin

Iad France - Arnaud Gaud vous propose : ? Maison familiale 3 chambres (possibilité 4) avec jardin - Bressols
Venez découvrir cette jolie maison individuelle de 95 m², située aux portes de Montauban dans le village convoité de Bressols, à proximité immédiate des commerces, écoles et accès autoroute Toulouse.
? Idéal 1er achat ou investissement locatif, elle allie confort moderne, luminosité et espace -- le tout dans une résidence paisible.

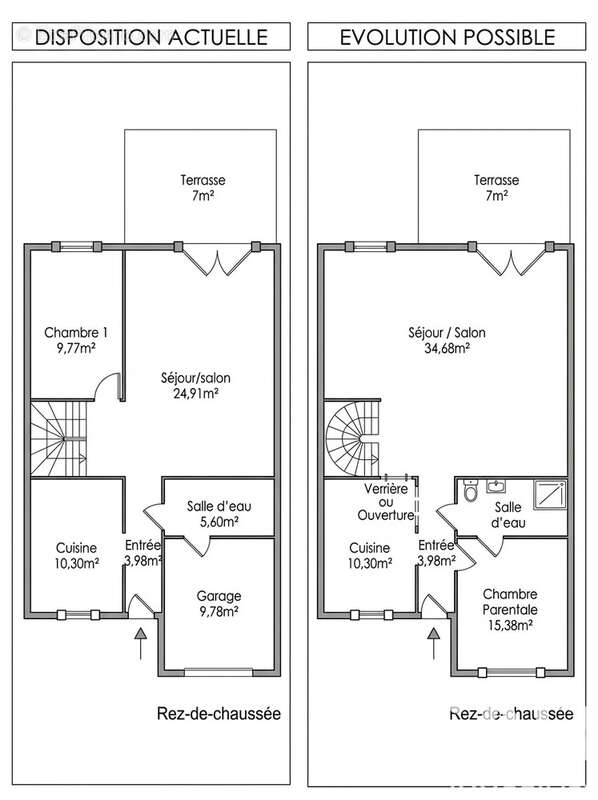
?? Au rez-de-chaussée :
Vaste salon lumineux de 25 m² (extensible jusqu'à 35 m²), ouvert sur une terrasse et un jardin privatif et sa terrasse.
Cuisine récente, équipée et aménagée.
Chambre de plain pied avec placard intégré.
Salle d'eau avec WC, atout rare, offrant la possibilité d'aménager une suite parentale.

?? À l'étage :
Deux belles chambres de 12,5 m², chacune avec rangements intégrés.
Salle de bain et WC indépendant.

???? Les + confort :
Climatisation réversible dans toutes les pièces principales
Deux pièces d'eau et deux WC, pratique pour la vie de famille.
2 Places de stationnement privative.
Ballon thermodynamique.
Construction 2005
Fibre optique, ventilation mécanique, chauffage individuel
Terrasse extérieure pour vos moments de détente

? Un emplacement idéal :
? Accès rocade et A62 (Toulouse - Bordeaux) à seulement 5 minutes.
? Centre ville avec écoles primaires et maternelles + commerces à moins de 2kms
? Bus ligne 27 : arrêts Crouzailles (100 m) et Royal Gala (200 m) - accès rapide à Montauban et son lycée.
?? Nature et loisirs : coulée verte, Wam Park, terrains de sport et vastes espaces verts autour.
? Future gare LGV Toulouse-Paris et
? Futur hôpital de Montauban en prévision pour l'aire 2030!

? Une opportunité rare sur le secteur -- contactez-moi dès aujourd'hui pour organiser votre visite !

La presente annonce immobiliere vise 1 lot situé dans une copropriété de 14 lots au total et ne faisant l'objet d'aucune procédure en cours citée à l'article L. 721-1 du code de la construction et de l'habitation. Montant moyen mensuel de charges déclaré par le vendeur : 56.67¤ par mois (soit 680 ¤ annuel). Honoraires d'agence à la charge du vendeur.
Information d'affichage énergétique sur ce bien : classe ENERGIE B indice 108 et classe CLIMAT A indice 4. Les informations sur les risques auxquels ce bien est exposé, y compris l'obligation légale de débroussaillement, sont disponibles sur le site Géorisques : http://www.georisques.gouv.fr.
La présente annonce immobilière a été rédigée sous la responsabilité éditoriale de M Arnaud Gaud mandataire indépendant en immobilier (sans détention de fonds), agent commercial de la SAS I@D France immatriculé au RSAC de MONTAUBAN sous le numéro 992391342, titulaire de la carte de démarchage immobilier pour le compte de la société I@D France SAS.Informations LOI ALUR : Soumis au régime de copropriété. Nombre de lots : 14. Quote part annuelle(moyenne) : 680 euros. Honoraires charge vendeur. (gedeon_6727_32320231)
Voir plus

Référence: 1908299
Bien en copropriété. Nombre de lots : 14. Charges de copropriété : 680 €.
Honoraires à la charge du vendeur.
Barème des honoraires
DPE
A
B
C
D
E
F
G
GES
A
B
C
D
E
F
G
Photo 1 - Maison à BRESSOLS
Photo 1
Photo 2 - Maison à BRESSOLS
Photo 2
Photo 3 - Maison à BRESSOLS
Photo 3
Photo 4 - Maison à BRESSOLS
Photo 4
Photo 5 - Maison à BRESSOLS
Photo 5
Photo 6 - Maison à BRESSOLS
Photo 6
Photo 7 - Maison à BRESSOLS
Photo 7
Photo 8 - Maison à BRESSOLS
Photo 8
Photo 9 - Maison à BRESSOLS
Photo 9
Géorisques

Les informations sur les risques auxquels ce bien est exposé sont disponibles sur le site Géorisques : www.georisques.gouv.fr

Ce site est protégé par hCaptcha Politique de confidentialité et Conditions d’utilisation s’appliquent.

En poursuivant votre navigation sans modifier vos paramètres, vous acceptez l'utilisation de cookies susceptibles de réaliser des statistiques de visite. Cliquez ici pour plus d'informations