Bénéficiez des services de nos partenaires locaux soigneusement sélectionnés
pour vous accompagner dans votre parcours d'achat immobilier

Appartement 62 m² à Villenave-D'ornon

— Villenave-D'ornon 33140 —
210 000 €
62 m²
3 pièces

Nos partenaires locaux
Iad France - Thibault JAMEAU vous propose : ! Belle opportunité !

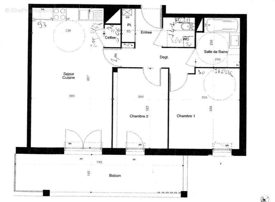
Idéalement situé, au calme absolu, proche de toutes les commodités et dans une résidence récente et sécurisée de 3 étages, venez découvrir ce bel appartement de type 3 de 62 m² au 2ème étage avec ascenseur.
Vous profiterez d'une cuisine totalement neuve (février 2026) y compris les électroménagers avec marque haut de gamme.
Vous apprécierez le grand balcon filant (14 m²) avec son accès depuis le salon et une chambre.
Coté nuit, vous profiterez de 2 belles chambres dont 1 avec grand dressing intégré.
Une salle de bain complète le coin nuit.
Le WC est séparé.
Pour vos besoins de stationnement de véhicules et compris dans la vente de ce bel appartement, vous bénéficierez de :
- 1 place sécurisée en sous sol (accès ascenseur ou escaliers)
- 1 place en extérieure (parking extérieur résidence (stationnement visible depuis l'appartement proche balcon)

! À VISITER SANS TARDER !

Les + du bien :

- Nombreux commerces en proximité
- Résidence récente
- Appartement totalement repeint (décembre 2025)
- Véritable entrée avec rangements
- Cuisine neuve (livraison février 2026)
- Grand balcon 14 m²
- Cellier adossé à la cuisine
- 2 places de stationnement sécurisées (dont une en sous sol)
- Pas de travaux à prévoir


La presente annonce immobiliere vise 3 lots situés dans une copropriété de 178 lots au total et ne faisant l'objet d'aucune procédure en cours citée à l'article L. 721-1 du code de la construction et de l'habitation. Montant moyen mensuel de charges déclaré par le vendeur : 90¤ par mois (soit 1080 ¤ annuel). Honoraires d'agence à la charge du vendeur.
Information d'affichage énergétique sur ce bien : classe ENERGIE C indice 70 et classe CLIMAT C indice 12. Les informations sur les risques auxquels ce bien est exposé, y compris l'obligation légale de débroussaillement, sont disponibles sur le site Géorisques : http://www.georisques.gouv.fr.
La présente annonce immobilière a été rédigée sous la responsabilité éditoriale de M Thibault JAMEAU mandataire indépendant en immobilier (sans détention de fonds), agent commercial de la SAS I@D France immatriculé au RSAC de BORDEAUX sous le numéro 900197336, titulaire de la carte de démarchage immobilier pour le compte de la société I@D France SAS.Informations LOI ALUR : Soumis au régime de copropriété. Nombre de lots : 178. Quote part annuelle(moyenne) : 1080 euros. Honoraires charge vendeur. (gedeon_6727_32424695)
Voir plus

Référence: 1902055
Bien en copropriété. Nombre de lots : 178. Charges de copropriété : 1080 €.
Honoraires à la charge du vendeur.
Barème des honoraires
DPE
A
B
C
D
E
F
G
GES
A
B
C
D
E
F
G
Photo 1 - Appartement à VILLENAVE-D'ORNON
Photo 1
Photo 2 - Appartement à VILLENAVE-D'ORNON
Photo 2
Photo 3 - Appartement à VILLENAVE-D'ORNON
Photo 3
Photo 4 - Appartement à VILLENAVE-D'ORNON
Photo 4
Photo 5 - Appartement à VILLENAVE-D'ORNON
Photo 5
Photo 6 - Appartement à VILLENAVE-D'ORNON
Photo 6
Photo 7 - Appartement à VILLENAVE-D'ORNON
Photo 7
Géorisques

Les informations sur les risques auxquels ce bien est exposé sont disponibles sur le site Géorisques : www.georisques.gouv.fr

Ce site est protégé par hCaptcha Politique de confidentialité et Conditions d’utilisation s’appliquent.

En poursuivant votre navigation sans modifier vos paramètres, vous acceptez l'utilisation de cookies susceptibles de réaliser des statistiques de visite. Cliquez ici pour plus d'informations