Bénéficiez des services de nos partenaires locaux soigneusement sélectionnés
pour vous accompagner dans votre parcours d'achat immobilier

Terrain 415 m² à Hatrize

— Hatrize 54800 —
49 500 €
415 m²

Nos partenaires locaux
Iad France - Natacha Thibaut vous propose : Terrain à bâtir ?

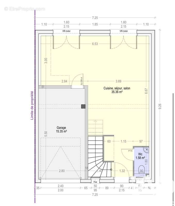
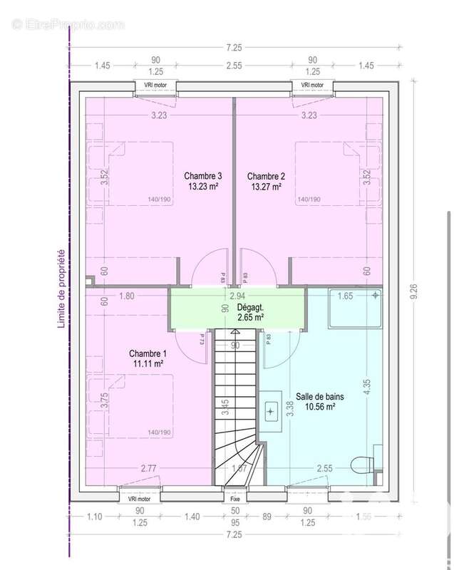
Au cOEur de la commune prisée de Hatrize, découvrez ce terrain à bâtir de 415 m², hors lotissement, offrant un environnement privilégié pour concrétiser un projet de construction sur mesure. (Voir photos)

Situé dans un village à taille humaine, reconnu pour son dynamisme et sa qualité de vie, ce terrain bénéficie d'un cadre paisible tout en restant parfaitement connecté aux grands axes et pôles économiques.

Hatrize séduit par ses écoles, crèche, commerces de proximité (bar, restaurant), ses équipements sportifs (tennis), ainsi que par une vie associative riche mêlant culture, sport et loisirs.
La commune est desservie par les transports (gare et bus) et offre un accès immédiat à l'autoroute A4.

? Localisation stratégique :
oMetz à 24 km
oLuxembourg à 40 km
oÀ seulement 10 minutes de Jarny, Sainte-Marie-aux-Chênes et Briey

Avec environ 838 habitants, Hatrize propose un équilibre rare entre calme résidentiel, convivialité et accessibilité, faisant de ce terrain une opportunité idéale pour une résidence principale de qualité ou un investissement patrimonial.

o Surface : environ 415 m²
o Terrain hors lotissement
o Non viabilisé

? Pour tout renseignement complémentaire ou pour envisager votre projet, n'hésitez pas à me contacter !

Honoraires d'agence à la charge du vendeur.
Bien non soumis au DPE. Les informations sur les risques auxquels ce bien est exposé, y compris l'obligation légale de débroussaillement, sont disponibles sur le site Géorisques : http://www.georisques.gouv.fr.
La présente annonce immobilière a été rédigée sous la responsabilité éditoriale de Mme Natacha Thibaut mandataire indépendant en immobilier (sans détention de fonds), agent commercial de la SAS I@D France immatriculé au RSAC de Metz sous le numéro 977759679, titulaire de la carte de démarchage immobilier pour le compte de la société I@D France SAS.Informations LOI ALUR : Honoraires charge vendeur. (gedeon_6727_32616231)
Voir plus

Référence: 1939148
Honoraires à la charge du vendeur.
Barème des honoraires
Photo 1 - Terrain à HATRIZE
Photo 1
Photo 2 - Terrain à HATRIZE
Photo 2
Photo 3 - Terrain à HATRIZE
Photo 3
Photo 4 - Terrain à HATRIZE
Photo 4
Géorisques

Les informations sur les risques auxquels ce bien est exposé sont disponibles sur le site Géorisques : www.georisques.gouv.fr

Ce site est protégé par hCaptcha Politique de confidentialité et Conditions d’utilisation s’appliquent.

En poursuivant votre navigation sans modifier vos paramètres, vous acceptez l'utilisation de cookies susceptibles de réaliser des statistiques de visite. Cliquez ici pour plus d'informations