Bénéficiez des services de nos partenaires locaux soigneusement sélectionnés
pour vous accompagner dans votre parcours d'achat immobilier

Commerce 183 m² à Saint-Denis

— Saint-Denis 93200 —
422 000 €
183 m²

Nos partenaires locaux
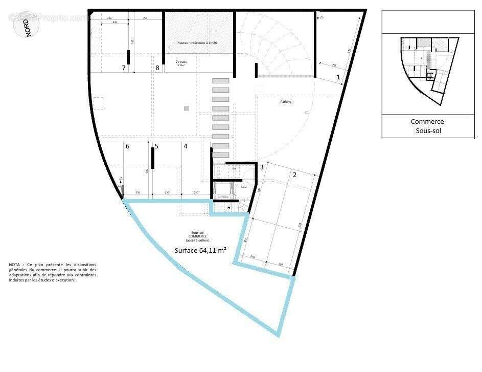
Iad France - Charbel Braidy ([Coordonnées masquées]) vous propose : À vendre -- Local commercial neuf de 183 m² environ avec réserve en sous-sol - Proximité gare Saint-Denis (93200)

Situé au sein d'une résidence neuve avec une livraison prévue en Avril 2026, ce local commercial de 183 m² environ offre une excellente opportunité pour tout entrepreneur souhaitant s'implanter dans un quartier dynamique et en pleine expansion. Sa surface généreuse avec sa belle façade sur rue et son emplacement stratégique en font un lieu idéal pour développer une activité pérenne.

Description du local
Le bien se compose de :
o119 m² environ en rez-de-chaussée, offrant une belle surface de vente ou d'accueil,
o64 m² environ de réserve au sous-sol, accessible directement, idéale pour stockage, laboratoire, back-office ou autres usages,
oUn espace livré brut, modulable avec une belle façade sur rue permettant d'adapter facilement l'aménagement selon l'activité envisagée.

Atout majeur : possibilité d'installation d'une extraction, permettant l'ouverture d'un restaurant ou toute activité de restauration rapide / café / boulangerie.

Emplacement stratégique
Le local bénéficie d'une visibilité optimale et d'un accès rapide à de nombreux axes majeurs :
oAutoroutes A1 et A86 à quelques minutes, facilitant la logistique et l'accessibilité,
oÀ proximité immédiate des transports :
oTram T8 (à 2 min à pied),
oRER D / Transilien H - gare de Saint-Denis (à 5mn à pied),
oTram T1 (à 15 mn à pied),
oMétro ligne 13 - Porte de Paris (à 15mn à pied),

Situé dans un quartier vivant et en développement, marqué par l'arrivée de nouvelles résidences et de nombreux services. Sa proximité avec les transports et les grands axes en fait un lieu attractif pour les commerces comme pour les futurs habitants.

Ce local se prête parfaitement à :
oun commerce de proximité,
oun cabinet professionnel,
oune activité de service,
oun restaurant, une boulangerie ou un établissement alimentaire.

N'hésitez pas à me contacter pour plus de détails.

Le bien associé à cette annonce est non soumis au DPE. Les informations sur les risques auxquels ce bien est exposé sont disponibles sur le site Géorisques : www.georisques.gouv.fr. La présente annonce immobilière a été rédigée sous la responsabilité éditoriale de M. Charbel Braidy EI (ID 77628), mandataire indépendant en immobilier (sans détention de fonds), agent commercial de la SAS I@D France immatriculé au RSAC de PARIS sous le numéro 882827272, titulaire de la carte de démarchage immobilier pour le compte de la société I@D France SAS.
Retrouvez tous nos biens sur notre site internet. www.iadfrance.fr.Informations LOI ALUR : Honoraires charge vendeur. (gedeon_6727_32812577)
Voir plus

Référence: 1920244-3
Honoraires à la charge du vendeur.
Barème des honoraires
Photo 1 - Commerce à SAINT-DENIS
Photo 1
Photo 2 - Commerce à SAINT-DENIS
Photo 2
Géorisques

Les informations sur les risques auxquels ce bien est exposé sont disponibles sur le site Géorisques : www.georisques.gouv.fr

Ce site est protégé par hCaptcha Politique de confidentialité et Conditions d’utilisation s’appliquent.

En poursuivant votre navigation sans modifier vos paramètres, vous acceptez l'utilisation de cookies susceptibles de réaliser des statistiques de visite. Cliquez ici pour plus d'informations