Bénéficiez des services de nos partenaires locaux soigneusement sélectionnés
pour vous accompagner dans votre parcours d'achat immobilier

Maison 150 m² à Loches

— Loches 37600 —
218 400 €
150 m² / 474 m²
6 pièces
balcon/terrassejardin

Nos partenaires locaux
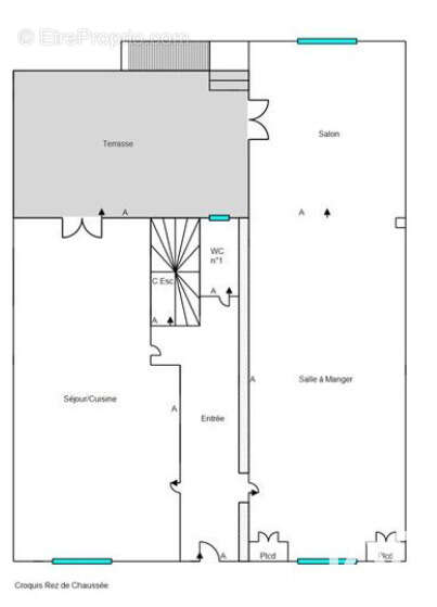
Iad France - Carole Renaudin vous propose : RARE À LOCHES -- MAISON DE VILLE FAMILIALE AVEC JARDIN Idéalement située en plein centre de Loches, cette authentique maison de caractère en pierre de tuffeau offre un privilège devenu rare : le confort d'une grande maison familiale avec un véritable jardin verdoyant, à deux pas des écoles, commerces et services. Derrière sa façade pleine de charme, cette demeure d'environ 150 m² répartis sur trois niveaux conjugue parfaitement cachet de l'ancien, volumes généreux et douceur de vivre en ville. Une maison pensée pour la vie de famille : Dès l'entrée, le ton est donné : circulation fluide, volumes accueillants et lumière naturelle omniprésente. Vous découvrirez : -Une cuisine ouverte sur une salle à manger, véritable cOEur de la maison pour les repas et moments partagés-Un accès direct à une terrasse exposée Est, parfaite pour les repas ensoleillés et les soirées d'été-Un salon / séjour traversant lumineux, propice aux instants de détente -Un WC indépendantUn rez-de-chaussée convivial, idéal pour recevoir et partager le quotidien. 5 chambres pour accueillir toute la familleLes étages offrent un espace nuit parfaitement adapté à la vie familiale : Au 1er étage : o Trois belles chambres lumineuseso Une salle de bains avec WCo Un palier central distribuant harmonieusement les piècesAu 2e étage : o Deux chambres supplémentaires, dont l'une avec cabinet de toilettes privatifo WC séparés avec accès pratique? Cinq chambres au total : un atout rare en centre-ville pour les familles nombreuses, le télétravail ou les projets d'accueil. Un jardin bucolique : le luxe en centre-villeDepuis la cuisine, la terrasse se prolonge vers un magnifique jardin clos et arboré, véritable havre de paix en plein cOEur urbain.-Espace sécurisé pour les enfants-Cadre idéal pour les repas en extérieur et les moments de détente-Portail permettant le stationnement privatifUne vraie maison de famille où nature et ville cohabitent harmonieusement. Des dépendances précieuses au quotidieno Maisonnette de jardin pour le rangement du matérielo Atelier indépendant d'environ 31 m² en rez-de-jardin : bricolage, stockage. Les atouts qui font la différence : -Chauffage par pompe à chaleur-Excellente performance énergétique -- DPE B-Emplacement central ultra recherché-Grand jardin clos -- rare en cOEur de ville- 5 chambres -- idéal grande famille-Terrasse, atelier et dépendances-Charme de l'ancien Une véritable maison de famille où tout se fait à pied, dans un cadre verdoyant et paisible. Un bien rare à Loches -- À visiter sans tarder. Honoraires d'agence à la charge du vendeur. Information d'affichage énergétique sur ce bien : classe ENERGIE B indice 73 et classe CLIMAT A indice 2. Les informations sur les risques auxquels ce bien est exposé, y compris l'obligation légale de débroussaillement, sont disponibles sur le site Géorisques : http://www.georisques.gouv.fr.La présente annonce immobilière a été rédigée sous la responsabilité éditoriale de Mme Carole Renaudin mandataire indépendant en immobilier (sans détention de fonds), agent commercial de la SAS I@D France immatriculé au RSAC de TOURS sous le numéro 793676123, titulaire de la carte de démarchage immobilier pour le compte de la société I@D France SAS.Informations LOI ALUR : Honoraires charge vendeur. (gedeon_6727_32851490)
Voir plus

Référence: 1969560
Honoraires à la charge du vendeur.
Barème des honoraires
DPE
A
B
C
D
E
F
G
GES
A
B
C
D
E
F
G
Photo 1 - Maison à LOCHES
Photo 1
Photo 2 - Maison à LOCHES
Photo 2
Photo 3 - Maison à LOCHES
Photo 3
Photo 4 - Maison à LOCHES
Photo 4
Photo 5 - Maison à LOCHES
Photo 5
Photo 6 - Maison à LOCHES
Photo 6
Photo 7 - Maison à LOCHES
Photo 7
Photo 8 - Maison à LOCHES
Photo 8
Photo 9 - Maison à LOCHES
Photo 9
Géorisques

Les informations sur les risques auxquels ce bien est exposé sont disponibles sur le site Géorisques : www.georisques.gouv.fr

Ce site est protégé par hCaptcha Politique de confidentialité et Conditions d’utilisation s’appliquent.

En poursuivant votre navigation sans modifier vos paramètres, vous acceptez l'utilisation de cookies susceptibles de réaliser des statistiques de visite. Cliquez ici pour plus d'informations