Bénéficiez des services de nos partenaires locaux soigneusement sélectionnés
pour vous accompagner dans votre parcours d'achat immobilier

Terrain 235 m² à Menton

— Menton 06500 —
477 000 €
235 m²

Nos partenaires locaux
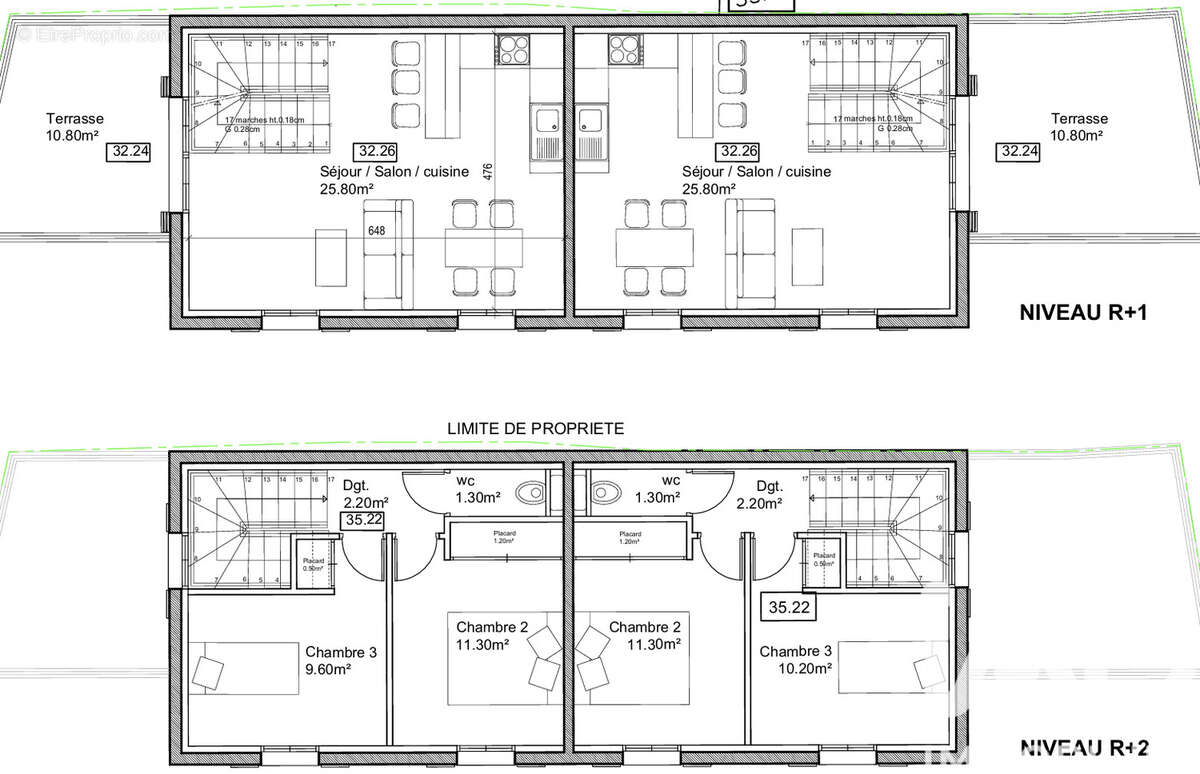
Iad France - Aurélie Querment vous propose : Terrain constructible 235 m² - Projet maison mitoyenne (PC accordé et purgé) À vendre terrain constructible de 235 m², idéal pour la réalisation de deux maisons mitoyennes d'environ 85 et 91 m² chacune. Le projet bénéficie d'un permis de construire déjà accordé et purgé de tout recours, permettant un démarrage rapide des travaux. Caractéristiques : Surface du terrain : 235 m²Projet validé pour 2 maisons mitoyennes en copropriétéGarage et places de stationnement prévusRéseaux validésAccord pour les raccordements VRDPermis de construire accordé et purgé des recoursTerrain idéal pour investisseur, projet de construction rapide, avec toutes les autorisations administratives déjà obtenues. Pour plus d'informations ou organiser une visite, merci de nous contacter. Honoraires d'agence à la charge du vendeur. Bien non soumis au DPE. Les informations sur les risques auxquels ce bien est exposé, y compris l'obligation légale de débroussaillement, sont disponibles sur le site Géorisques : http://www.georisques.gouv.fr.La présente annonce immobilière a été rédigée sous la responsabilité éditoriale de Mme Aurélie Querment mandataire indépendant en immobilier (sans détention de fonds), agent commercial de la SAS I@D France immatriculé au RSAC de Nice sous le numéro 848983557, titulaire de la carte de démarchage immobilier pour le compte de la société I@D France SAS.Informations LOI ALUR : Honoraires charge vendeur. (gedeon_6727_32851497)
Voir plus

Référence: 1969603
Honoraires à la charge du vendeur.
Barème des honoraires
Photo 1 - Terrain à MENTON
Photo 1
Photo 2 - Terrain à MENTON
Photo 2
Photo 3 - Terrain à MENTON
Photo 3
Géorisques

Les informations sur les risques auxquels ce bien est exposé sont disponibles sur le site Géorisques : www.georisques.gouv.fr

Ce site est protégé par hCaptcha Politique de confidentialité et Conditions d’utilisation s’appliquent.

En poursuivant votre navigation sans modifier vos paramètres, vous acceptez l'utilisation de cookies susceptibles de réaliser des statistiques de visite. Cliquez ici pour plus d'informations