Bénéficiez des services de nos partenaires locaux soigneusement sélectionnés
pour vous accompagner dans votre parcours d'achat immobilier

Maison 114 m² à Boissy-Saint-Leger

— Boissy-Saint-Leger 94470 —
392 000 €
114 m² / 328 m²
6 pièces
parkingbalcon/terrassejardin

Nos partenaires locaux
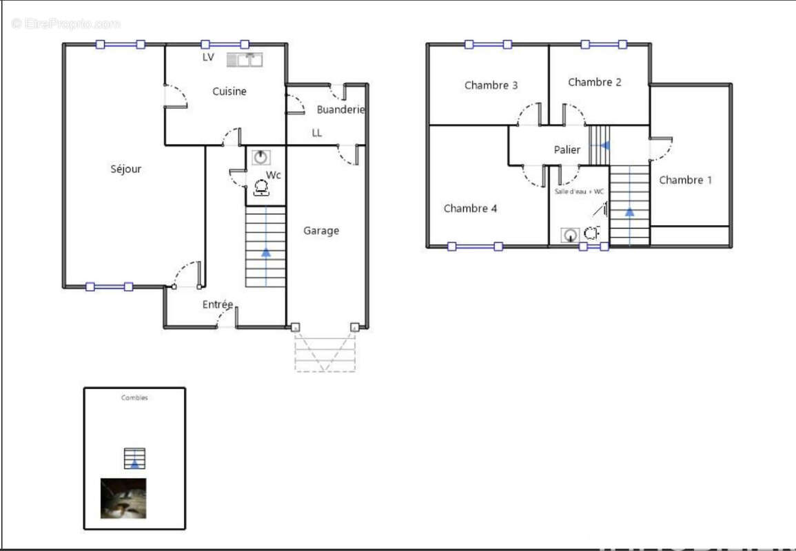
Iad France - Fatiha El Idrissi vous propose : Bienvenue dans cette jolie maison de 114 m² édifiée sur une parcelle de 328 m² située au calme dans un secteur très recherché à proximité immédiate de la forêt de Grosbois et des écoles. Maison familiale sur 2 niveaux sans aucun vis-à-vis, non mitoyenne exposée plein sud offre un cadre de vie idéal disposant d'un jardin et 2 grandes terrasses pour profiter pleinement de l'extérieur. Au Rez-de-chaussée, vous serez séduit par l'espace de l'entrée, un double séjour traversant baigné dans la lumière donnant sur terrasse et jardin, une cuisine séparée fonctionnelle entièrement aménagée et équipée, WC avec lave-mains et une buanderie attenant avec accès direct au garage. L'étage vous accueille avec un palier en étoile distribuant 4 chambres et une grande salle de douche avec WC qui viennent compléter cet espace nuit. Possibilité de stationner plusieurs véhicules dans la cours en plus du garage. Taxe Foncière : 1503Équipements : chaudière à gaz. Gare RER A de Boissy à moins de 17 min par Bus (435), Ecole maternelle les Châtaigniers au pied de la maison, Collège Amédée Dubois et école primaire du Bois Clary à 10 min via bus 435. Cette propriété sera parfaite pour accueillir votre famille dans un cadre chaleureux et convivial. Honoraires d'agence à la charge du vendeur. Information d'affichage énergétique sur ce bien : classe ENERGIE E indice 295 et classe CLIMAT E indice 63. Les informations sur les risques auxquels ce bien est exposé, y compris l'obligation légale de débroussaillement, sont disponibles sur le site Géorisques : http://www.georisques.gouv.fr.La présente annonce immobilière a été rédigée sous la responsabilité éditoriale de Mme Fatiha El Idrissi mandataire indépendant en immobilier (sans détention de fonds), agent commercial de la SAS I@D France immatriculé au RSAC de CRETEIL sous le numéro 410 896 633, titulaire de la carte de démarchage immobilier pour le compte de la société I@D France SAS.Informations LOI ALUR : Honoraires charge vendeur. (gedeon_6727_32965992)
Voir plus

Référence: 1981365
Honoraires à la charge du vendeur.
Barème des honoraires
DPE
A
B
C
D
E
F
G
GES
A
B
C
D
E
F
G
Photo 1 - Maison à BOISSY-SAINT-LEGER
Photo 1
Photo 2 - Maison à BOISSY-SAINT-LEGER
Photo 2
Photo 3 - Maison à BOISSY-SAINT-LEGER
Photo 3
Photo 4 - Maison à BOISSY-SAINT-LEGER
Photo 4
Photo 5 - Maison à BOISSY-SAINT-LEGER
Photo 5
Photo 6 - Maison à BOISSY-SAINT-LEGER
Photo 6
Photo 7 - Maison à BOISSY-SAINT-LEGER
Photo 7
Photo 8 - Maison à BOISSY-SAINT-LEGER
Photo 8
Photo 9 - Maison à BOISSY-SAINT-LEGER
Photo 9
Géorisques

Les informations sur les risques auxquels ce bien est exposé sont disponibles sur le site Géorisques : www.georisques.gouv.fr

Ce site est protégé par hCaptcha Politique de confidentialité et Conditions d’utilisation s’appliquent.

En poursuivant votre navigation sans modifier vos paramètres, vous acceptez l'utilisation de cookies susceptibles de réaliser des statistiques de visite. Cliquez ici pour plus d'informations