Bénéficiez des services de nos partenaires locaux soigneusement sélectionnés
pour vous accompagner dans votre parcours d'achat immobilier

Maison 125 m² à Plozevet

— Plozevet 29710 —
270 900 €
125 m² / 2 060 m²
6 pièces
jardin

Nos partenaires locaux
Iad France - Jannick Gourmelun vous propose : Située dans un environnement calme et chargé d'histoire, cette superbe bâtisse en pierre est la maison d'habitation pleine de charme d'un ancien corps de ferme, à rénover selon vos envies.
Incarnant l'esprit des vacances en bord de mer, un véritable havre de paix où le charme de l'ancien rencontre la douceur de la campagne et du littoral.

Vous serez séduit par :
Le cachet de l'ancien avec une architecture authentique
Les possibilités de rénovation
L'environnement paisible

La distribution :
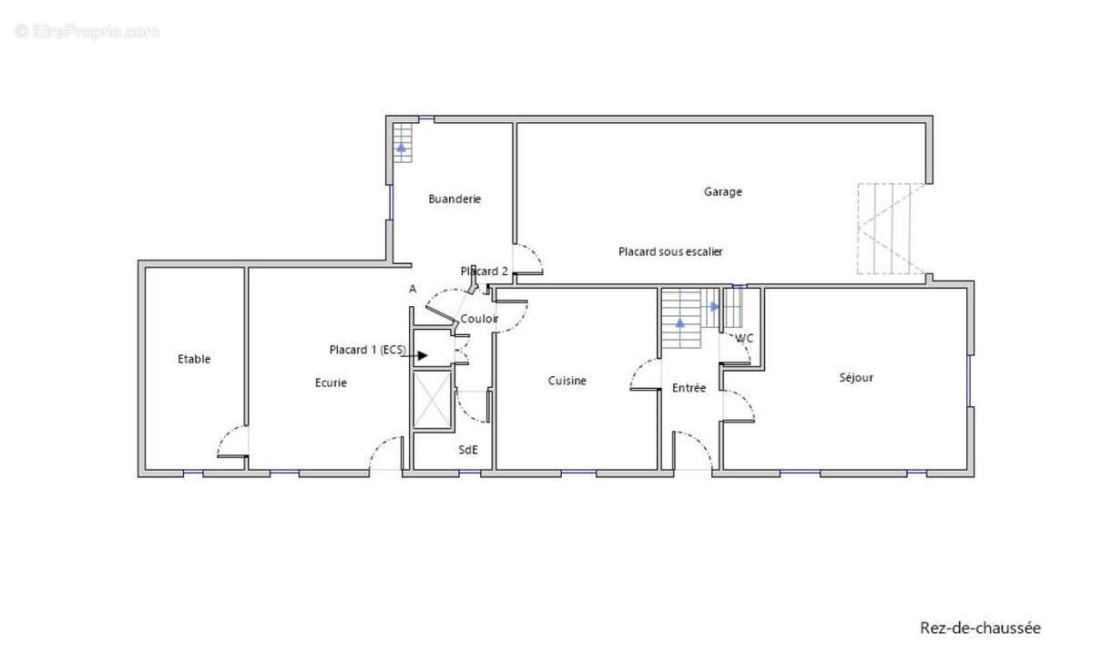
Au RDC : Entrée, Cuisine, Salon séjour, wc
A l'étage : Couloir, quatres chambres avec placards, WC, salle de bains, greniers.
Annexes : Buanderie, Garage, Ancienne écurie, Ancienne étable (attenants), Jardin arboré.
Superficie habitable de 126 m², superficie totale au sol de 219 m²

Points techniques :
Assainissement individuel à revoir
Couverture en ardoise naturelle
Une partie des fenêtres sont en PVC
Chauffage électrique

Ce que l'on aime : L'environnement, la proximité des plages et des balades en campagne, le charme de l'ancien, les espaces de stockage, l'exposition sud.

Points d'intérêts :
À 2km5 de la plage du Menhir
À 4km de la plage de Penhors
À 4km des commerces de Plozévet et 4km des commerces de Pouldreuzic
À 30 min de Quimper

Etablie sur une parcelle de 2000 m², cette maison offre une atmosphère rare : le calme d'un lieu bucolique et l'âme d'un bâti chargé d'histoire.
N'hésitez pas à me contacter pour plus d'informations.

Honoraires d'agence à la charge de l'acquéreur. Prix honoraires inclus : 270900 euros. Prix hors honoraires : 260000 euros. Honoraires TTC à la charge de l'acquéreur (4,19% du prix du bien hors honoraires) : 10900 euros.
Information d'affichage énergétique sur ce bien : classe ENERGIE F indice 353 et classe CLIMAT C indice 11. Les informations sur les risques auxquels ce bien est exposé, y compris l'obligation légale de débroussaillement, sont disponibles sur le site Géorisques : http://www.georisques.gouv.fr.
La présente annonce immobilière a été rédigée sous la responsabilité éditoriale de Mme Jannick Gourmelun mandataire indépendant en immobilier (sans détention de fonds), agent commercial de la SAS I@D France immatriculé au RSAC de QUIMPER sous le numéro 904985173, titulaire de la carte de démarchage immobilier pour le compte de la société I@D France SAS.Informations LOI ALUR : Honoraires charge acquéreur. Prix hors honoraires : 260 000 ¤. (gedeon_6727_33043227)
Voir plus

Référence: 1989710
Honoraires à la charge de l'acquéreur.
Barème des honoraires
DPE
A
B
C
D
E
F
G
GES
A
B
C
D
E
F
G
Photo 1 - Maison à PLOZEVET
Photo 1
Photo 2 - Maison à PLOZEVET
Photo 2
Photo 3 - Maison à PLOZEVET
Photo 3
Photo 4 - Maison à PLOZEVET
Photo 4
Photo 5 - Maison à PLOZEVET
Photo 5
Photo 6 - Maison à PLOZEVET
Photo 6
Photo 7 - Maison à PLOZEVET
Photo 7
Photo 8 - Maison à PLOZEVET
Photo 8
Photo 9 - Maison à PLOZEVET
Photo 9
Géorisques

Les informations sur les risques auxquels ce bien est exposé sont disponibles sur le site Géorisques : www.georisques.gouv.fr

Ce site est protégé par hCaptcha Politique de confidentialité et Conditions d’utilisation s’appliquent.

En poursuivant votre navigation sans modifier vos paramètres, vous acceptez l'utilisation de cookies susceptibles de réaliser des statistiques de visite. Cliquez ici pour plus d'informations