Bénéficiez des services de nos partenaires locaux soigneusement sélectionnés
pour vous accompagner dans votre parcours d'achat immobilier

Victoria — l’élégance d’une villa de plain-pied

— Narbonne 11100 —
399 000 €
144 m²
4 pièces
parkingbalcon/terrassepiscine

Nos partenaires locaux
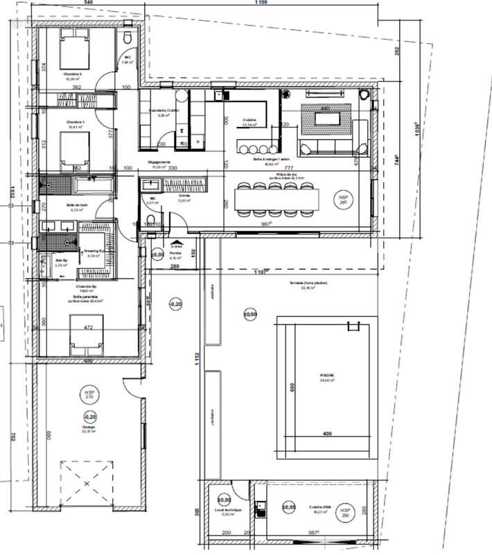
GALA IMMOBILIER, en mandat exclusif, a le privilège de vous présenter Victoria, une villa contemporaine d’exception actuellement en cours d’achèvement, avec une livraison prévue en 2026.( Plan et photos Non Contractuel )
Développant 144 m2 habitables sur un superbe terrain de 1 200 m2, elle prend place dans un environnement préservé, au calme absolu et sans aucun vis-à-vis.
Pensée dans les moindres détails et réalisée avec des matériaux nobles, Victoria séduit par ses prestations haut de gamme et son raffinement.
Son architecture contemporaine met en valeur des volumes épurés, une circulation fluide et une luminosité remarquable, offrant ainsi un cadre de vie aussi élégant que confortable.
Victoria n’est pas seulement une villa, c’est une promesse de bien-être au quotidien.

Chaque espace a été conçu pour offrir intimité, confort et sérénité.
Dès l’entrée, la villa séduit par son atmosphère élégante et parfaitement maîtrisée. Le regard est immédiatement attiré par une superbe pièce de vie de 55 m2, baignée de lumière naturelle.
Véritable cœur de la maison, cet espace aux volumes généreux invite à la convivialité et aux moments de partage, en famille comme entre amis.
Il accueille une cuisine haut de gamme, à la fois moderne, esthétique et parfaitement fonctionnelle.
Grâce à une large baie vitrée de 4 mètres, la pièce s’ouvre pleinement sur l’extérieur, créant une continuité harmonieuse entre intérieur et extérieur.
Offrant un véritable effet dedans/dehors
L’ensemble est complété par des espaces pratiques et parfaitement intégrés, comprenant une buanderie de 6,36 m2 ainsi qu’un WC indépendant avec lave-mains de 2,51 m2.
Le garage de 36,53 m2, entièrement motorisé, carrelé et isolé, s’intègre harmonieusement à la maison et répond aux exigences d’un bien de standing

Des espaces nuit élégants et confortables
Un dégagement dessert harmonieusement l’espace nuit, composé de ,Deux chambres spacieuses d’environ 12,36-12,41 m2, Une salle de bain raffinée de 8,70 m2, Douche italienne , double vasque et baignoire un WC 1,91m2 Une suite parentale pensée comme un véritable cocon, avec un espace dédié au dressing et une salle d’eau privative équipée d’une douche et d’une vasque 34,50m2 .
Un extérieur intime et raffiné
À l’extérieur, cette villa récente de plain-pied, quatre faces, dévoile un jardin intimiste, entièrement à l’abri des regards, idéal pour la détente et les moments privilégiés en famille ou entre amis.
La vaste terrasse d’environ 55 m2, agrémentée d’une piscine et de sa cuisine d’été, prolonge harmonieusement les espaces de vie et invite à profiter pleinement des belles journées comme des soirées estivales.
Confort moderne et prestations de qualité
Cette propriété séduit par la qualité de ses équipements et son confort contemporain :
Construction récente, Chauffage gainable pour un confort thermique optimal, Volets motorisés centralisés, Ballon d’eau chaude thermodynamique, Villa quatre faces, garantissant luminosité et tranquillité, Aucun vis-à-vis
Une situation privilégiée
Située à seulement 20 minutes de Narbonne, cette villa bénéficie d’un emplacement recherché alliant calme, proximité des commodités et qualité de vie. Écoles, commerces et services sont accessibles rapidement, offrant un quotidien pratique et agréable.
Narbonne, l’art de vivre à la française entre mer, soleil et saveurs.
Informations complémentaires :
Taxe Foncière ( absence de taxe foncière pendant deux ans. )
A votre disposition : Les Plans,


Les informations sur les risques auxquels ce bien est exposé sont disponibles sur le site Géorisques : www.georisques.gouv.fr
Je vous invite à contacter GALA Immobilier pour donner vie à votre projet et trouver la villa qui vous ressemble.


Voir plus

Honoraires à la charge du vendeur.
Barème des honoraires
Maison à NARBONNE
Maison à NARBONNE
Maison à NARBONNE
Géorisques

Les informations sur les risques auxquels ce bien est exposé sont disponibles sur le site Géorisques : www.georisques.gouv.fr

Ce site est protégé par hCaptcha Politique de confidentialité et Conditions d’utilisation s’appliquent.

En poursuivant votre navigation sans modifier vos paramètres, vous acceptez l'utilisation de cookies susceptibles de réaliser des statistiques de visite. Cliquez ici pour plus d'informations