Bénéficiez des services de nos partenaires locaux soigneusement sélectionnés
pour vous accompagner dans votre parcours d'achat immobilier

Appartement

— Paris-13e 75013 —
231 000 €
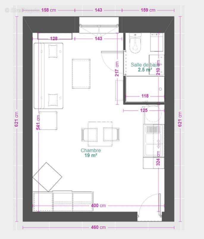
21 m²
1 pièce

Nos partenaires locaux
75013 - PARIS - PLACE D'ITALIE / AVENUE DE CHOISY - STUDIO - 21m2 - 1ER ÉTAGE - EXPOSITION EST - LUMINEUX - SÉCURISÉE - EXCELLENT ÉTAT - DPE D

ATOUTS = Quartier très recherché de la Place d'Italie, proche commerces et transports, petite copropriété bien entretenue sans ascenseur, excellent état, vendu libre de toute occupation.

EffiCity, l'agence leader de l'estimation en ligne, vous propose de venir découvrir ce studio de 21,17M2 carrez, situé au 1er étage. Très lumineux, l'appartement donne sur rue. Studio renové comprenant : un séjour avec coin nuit et rangements, une kitchenette ouverte ainsi qu'une salle de bain avec grande douche et wc.

Compteurs d'eau indépendants. Compteur EDF/Linky sur le palier.

Parties communes et toiture refaites récemment. Fibre installé.

A visiter au plus vite.

Pour les visites et les renseignements contactez : Elena Sukhanakova au [Coordonnées masquées] ou par mail : [Coordonnées masquées]
Les informations sur les risques auxquels ce bien est exposé sont disponibles sur le site Georisque : georisques. gouv. fr
Elena Sukhanakova - EI - est Agent Commercial mandataire en immobilier, immatriculé au Registre Spécial des Agents Commerciaux du Tribunal de Commerce de Paris 15e Arrondissement sous le n°818266207.
Siège social du mandant : effiCity, 48 avenue de Villiers - 75017 PARIS - Société par Actions Simplifiée, société au capital de 132 373,05 euros, immatriculée au RCS Paris 497 617 746 et titulaire de la Carte professionnelle CPI 75[Coordonnées masquées]02 025 - CCI Paris IDF - Caisse de Garantie : GALIAN Assurances 89 rue de la Boétie 75008 Paris
Voir plus

Référence: 212205
Bien en copropriété. Nombre de lots : 19. Charges de copropriété : 125 €.
Honoraires à la charge du vendeur.
Barème des honoraires
DPE
A
B
C
D
E
F
G
GES
A
B
C
D
E
F
G
Appartement à PARIS-13E
Appartement à PARIS-13E
Appartement à PARIS-13E
Appartement à PARIS-13E
Appartement à PARIS-13E
Appartement à PARIS-13E
Appartement à PARIS-13E
Appartement à PARIS-13E
Appartement à PARIS-13E
Appartement à PARIS-13E
Appartement à PARIS-13E
Appartement à PARIS-13E
Appartement à PARIS-13E
Appartement à PARIS-13E
Appartement à PARIS-13E
Appartement à PARIS-13E
Appartement à PARIS-13E
Appartement à PARIS-13E
Appartement à PARIS-13E
Géorisques

Les informations sur les risques auxquels ce bien est exposé sont disponibles sur le site Géorisques : www.georisques.gouv.fr

Ce site est protégé par hCaptcha Politique de confidentialité et Conditions d’utilisation s’appliquent.

En poursuivant votre navigation sans modifier vos paramètres, vous acceptez l'utilisation de cookies susceptibles de réaliser des statistiques de visite. Cliquez ici pour plus d'informations