Bénéficiez des services de nos partenaires locaux soigneusement sélectionnés
pour vous accompagner dans votre parcours d'achat immobilier

T4 avec terrasse exceptionnelle de 134 m2 Toulouse Malepère

— Toulouse 31400 —
389 900 €
83 m²
3 pièces
parkingbalcon/terrasse

Nos partenaires locaux
Bien rare sur le secteur

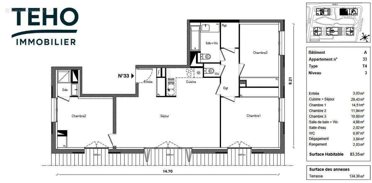
Situé au cœur du Faubourg Malepère, secteur en plein développement au sud-est de Toulouse, découvrez ce magnifique appartement T4 de 83 m2, au 3ᵉ étage avec ascenseur, au sein d’une résidence récente et sécurisée.
Son atout majeur : une terrasse exceptionnelle de plus de 134 m2, véritable prolongement de l’espace de vie, idéale pour profiter pleinement des beaux jours, recevoir ou aménager un espace extérieur unique.

Un intérieur confortable et bien pensé :

Pièce de vie lumineuse avec cuisine ouverte (près de 30 m2)
3 chambres dont une suite avec salle d’eau
Salle de bains + WC séparés
Nombreux rangements

Surface habitable : 83,35 m2 Terrasse : 134,30 m2

Les + du bien :

Terrasse rare aux dimensions exceptionnelles
Appartement lumineux et fonctionnel
Résidence récente avec ascenseur
2 places de parking en sous-sol sécurisé
Environnement calme et verdoyant


Emplacement stratégique :

Bus Linéo L9 au pied de la résidence
Accès rapide A61 (800 m)
Proximité Labège, Montaudran et zones d’emploi
Commerces, écoles et services à proximité


Prestations :

Cuisine aménagée et équipée
Salle de bains et salle d’eau aménagées
Chauffage via réseau de chaleur urbain
Résidence sécurisée (badge, parking, local vélos)


Prix : 389 900 € (honoraires inclus)

Pour toute demande d'informations complémentaires et pour étude et conseils de faisabilité d'une acquisition de résidence principale en Prix Maîtrisés, Contactez-nous dès maintenant.

DPE : C (60 kWh/m2/an) GES : C (12 kg CO₂/m2/an)

Un bien unique, idéal pour une résidence principale alliant espace, confort et extérieur exceptionnel.
Voir plus

Honoraires à la charge du vendeur.
Barème des honoraires
DPE
A
B
C
D
E
F
G
GES
A
B
C
D
E
F
G
Appartement à TOULOUSE
Appartement à TOULOUSE
Appartement à TOULOUSE
Appartement à TOULOUSE
Appartement à TOULOUSE
Appartement à TOULOUSE
Géorisques

Les informations sur les risques auxquels ce bien est exposé sont disponibles sur le site Géorisques : www.georisques.gouv.fr

Ce site est protégé par hCaptcha Politique de confidentialité et Conditions d’utilisation s’appliquent.