Bénéficiez des services de nos partenaires locaux soigneusement sélectionnés
pour vous accompagner dans votre parcours d'achat immobilier

« la gaude - villa »

— La Gaude 06610 —
849 000 €
163 m²
5 pièces
piscine

Nos partenaires locaux
La Gaude – Villa de charme avec piscine et vue dégagée - Deux habitations indépendantes, prestations haut de gamme

Dans un environnement résidentiel recherché de La Gaude, au calme absolu et bénéficiant d’une vue dégagée, cette élégante propriété en parfait état séduit par la qualité de ses prestations, ses volumes généreux et ses extérieurs soigneusement aménagés.

Édifiée sur un terrain harmonieusement paysagé, la propriété offre de superbes espaces de vie extérieurs de plain-pied, comprenant une piscine, un terrain de pétanque ainsi que de vastes terrasses baignées de soleil, invitant à la détente dans un cadre privilégié.

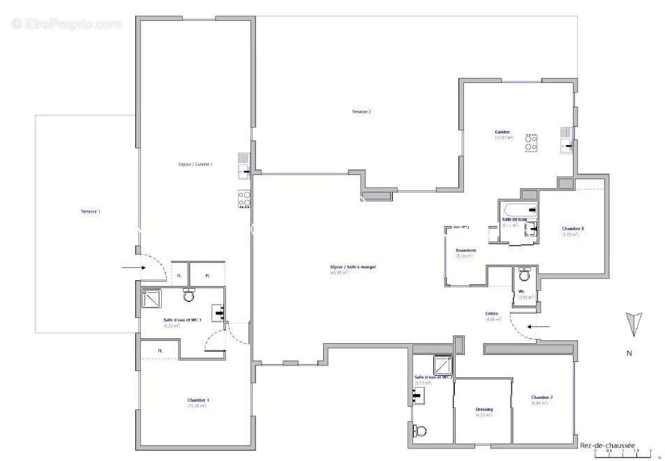
La maison se distingue par sa configuration rare, composée de deux habitations indépendantes, idéales pour accueillir famille et invités ou développer un projet locatif de standing, avec la possibilité de réunir facilement les deux appartements afin de créer une seule et vaste résidence.

Appartement principal – 3 pièces de 87 m²
Pensé avec élégance et fonctionnalité, il s’ouvre sur une entrée accueillante, une cuisine semi-ouverte, parfaitement intégrée à un vaste séjour avec un poêle à bois.
Un espace buanderie complète cet espace de vie.
La partie nuit propose une première chambre en suite avec salle de bains, ainsi qu’une véritable suite parentale avec dressing et salle de douche. Un toilette indépendant vient parfaire l’agencement.
De nombreux rangements sur mesure viennent compléter l’ensemble.
L’appartement s’ouvre sur une spacieuse terrasse exposée plein Sud, offrant une continuité parfaite entre intérieur et extérieur.

Appartement indépendant – 2 pièces de 76 m²
Aux volumes remarquables, il propose une vaste pièce de vie avec cuisine ouverte, une grande chambre ainsi qu’une salle de bains avec WC.
Cet espace bénéficie également d’une large terrasse exposée Sud-Est, idéale pour profiter d’un ensoleillement optimal.

En complément, un vaste sous-sol occupant toute l’emprise de la maison offre une cave aux volumes exceptionnels, idéale pour le stockage ou l’aménagement d’espaces complémentaires.

Une propriété rare, alliant charme, confort et prestations de qualité, idéale en résidence principale, maison familiale ou projet patrimonial avec fort potentiel d’évolution.

Prestations de qualité : panneaux solaires, climatisation, double vitrage et rénovation récente.
Voir plus

Référence: 86900525
DPE
A
B
C
D
E
F
G
GES
A
B
C
D
E
F
G
Maison à LA GAUDE
Maison à LA GAUDE
Maison à LA GAUDE
Maison à LA GAUDE
Maison à LA GAUDE
Maison à LA GAUDE
Maison à LA GAUDE
Maison à LA GAUDE
Maison à LA GAUDE
Maison à LA GAUDE
Maison à LA GAUDE
Maison à LA GAUDE
Maison à LA GAUDE
Maison à LA GAUDE
Maison à LA GAUDE
Maison à LA GAUDE
Maison à LA GAUDE
Maison à LA GAUDE
Maison à LA GAUDE
Maison à LA GAUDE
Maison à LA GAUDE
Maison à LA GAUDE
Maison à LA GAUDE
Maison à LA GAUDE
Maison à LA GAUDE
Maison à LA GAUDE
Maison à LA GAUDE
Maison à LA GAUDE
Maison à LA GAUDE
Maison à LA GAUDE
Maison à LA GAUDE
Maison à LA GAUDE
Géorisques

Les informations sur les risques auxquels ce bien est exposé sont disponibles sur le site Géorisques : www.georisques.gouv.fr

Ce site est protégé par hCaptcha Politique de confidentialité et Conditions d’utilisation s’appliquent.

En poursuivant votre navigation sans modifier vos paramètres, vous acceptez l'utilisation de cookies susceptibles de réaliser des statistiques de visite. Cliquez ici pour plus d'informations