Bénéficiez des services de nos partenaires locaux soigneusement sélectionnés
pour vous accompagner dans votre parcours d'achat immobilier

"Villa Clara"

— Nice 06300 —
339 000 €
64 m²
3 pièces
parkingbalcon/terrasseascenseuraccès handicapé

Nos partenaires locaux
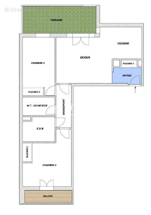
VILLA CLARA – Superbe 3 pièces traversant avec terrasse sur jardin, climatisation et garage

Situé au sein de la résidence sécurisée et parfaitement entretenue Villa Clara, au 35 boulevard Pierre Sémard, ce magnifique appartement 3 pièces traversant saura séduire par son excellent état, ses prestations de qualité et son environnement calme et résidentiel.

Bénéficiant d’un accès PMR, cet appartement entièrement climatisé offre un cadre de vie confortable et fonctionnel, à proximité immédiate des commerces, transports et principaux axes de circulation.

Dès l’entrée, vous découvrirez des espaces soigneusement agencés avec un hall équipé d’un placard de rangement. La pièce de vie lumineuse, avec cuisine ouverte, s’ouvre harmonieusement sur une agréable terrasse de 13 m² donnant sur le jardin de la résidence, véritable prolongement extérieur idéal pour profiter d’un environnement verdoyant et paisible.

L’espace nuit, parfaitement séparé, se compose de deux chambres avec placards intégrés, d’une spacieuse salle de bains ainsi que d’un WC indépendant avec espace buanderie.

L’appartement, en parfait état, ne nécessite aucun travaux et propose des prestations modernes garantissant confort et performance énergétique : climatisation réversible, double vitrage et équipements conformes aux dernières normes.

Ce bien conviendra aussi bien à une résidence principale qu’à un investissement patrimonial de qualité.

Un garage fermé complète ce bien et est inclus dans le prix.

Un appartement clé en main, alliant confort, modernité et qualité de vie.
Voir plus

Référence: 86895154
DPE
A
B
C
D
E
F
G
GES
A
B
C
D
E
F
G
Appartement à NICE
Appartement à NICE
Appartement à NICE
Appartement à NICE
Appartement à NICE
Appartement à NICE
Appartement à NICE
Appartement à NICE
Appartement à NICE
Appartement à NICE
Appartement à NICE
Appartement à NICE
Appartement à NICE
Appartement à NICE
Appartement à NICE
Appartement à NICE
Appartement à NICE
Appartement à NICE
Appartement à NICE
Appartement à NICE
Appartement à NICE
Appartement à NICE
Appartement à NICE
Appartement à NICE
Appartement à NICE
Appartement à NICE
Appartement à NICE
Géorisques

Les informations sur les risques auxquels ce bien est exposé sont disponibles sur le site Géorisques : www.georisques.gouv.fr

Ce site est protégé par hCaptcha Politique de confidentialité et Conditions d’utilisation s’appliquent.