Bénéficiez des services de nos partenaires locaux soigneusement sélectionnés
pour vous accompagner dans votre parcours d'achat immobilier

Maison familiale - 5 chambres - 9 pièces - centre ville à pied

— Gournay-Sur-Marne 93460 —
599 000 €
147 m² / 460 m²
9 pièces

Nos partenaires locaux
Quartier recherché de Gournay sur marne, au calme et sans vis à vis.
Venez découvrir cette jolie maison de 147,60m² habitable, lumineuse et très bien entretenue. (208,72m² en surface utile)
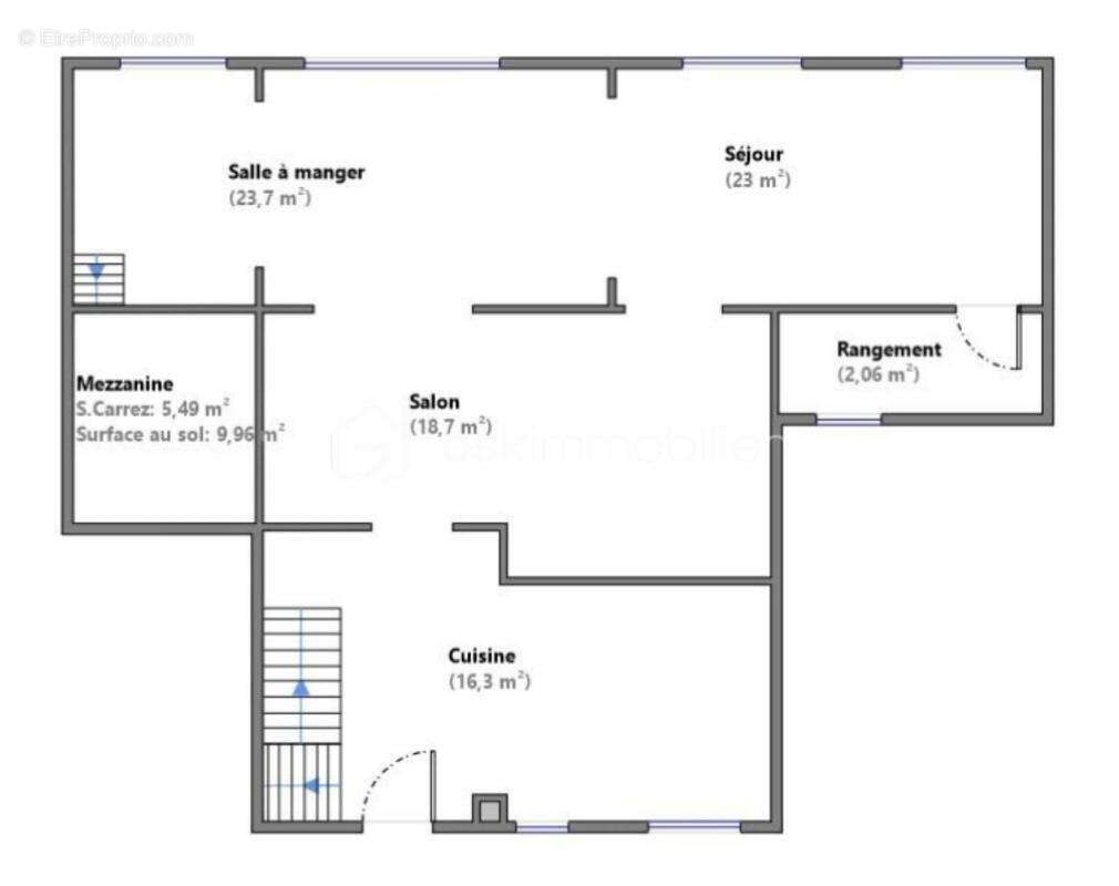
Elle se compose au rez-de-chaussée surélevé, d'une grande cuisine aménagée, d'un triple séjour sans aucun vis à vis offrant plus de 65m² (idéal grandes familles ou pour recevoir). Une mezzanine de 9,96m² au sol complète cet espace de vie pour en faire un petit coin chaleureux et douillet.
A l'étage, vous trouverez un palier desservant une 1ère chambre avec un accès à une terrasse en hauteur de 13,50m², une 2ème chambre de 21,45m² a également accès à cette terrasse à l'abri des regards et bénéficie d'un dressing de 9,60m², une 3ème chambre avec penderie, une salle d'eau avec wc.
Au Rez-de-jardin, un espace aménagé en 2 chambres, une salle d'eau, un wc, une buanderie, une pièce de 8,33m² qui laisse le choix à de nombreuses possibilités.
Les +++ : Grande hauteur sous plafond, toiture récente et isolée, chaudière CONDENSATION 5 ans, beaux volumes, dpe D, quartier prisé et calme, pièce de vie très spacieuse et lumineuse, pas de vis à vis.
Proximités des écoles, commerces, bords de marne. (jamais inondé).
Dépendance de 17,50m² en fond de parcelle.
Terrasse avec jardin spacieux et reposant.

N'attendez plus pour une visite, cette maison va vous surprendre !!!

Cette annonce référence 329241 vous est présentée par votre agent commercial BSK Immobilier JENNIFER JAM (EIRL) immatriculé au RSAC de BOBIGNY (93000) sous le numéro 52195423000020.

Prix du bien : 599 000,00 €
Les honoraires d'agence sont à la charge du vendeur.

A propos des performances énergétiques :
Date de réalisation du diagnostic énergétique : 09/10/2025
Score DPE : 201 kWhEP/m²/an
Score GES : 43 kgepCO2/m²/an
Montant estimé des dépenses annuelles d'énergie pour un usage standard : entre 3590.00 € et 4900.00 € par an. Prix moyens des énergies indexés sur l'année 2023 (abonnements compris).

Les informations sur les risques auxquels ce bien est exposé sont disponibles sur le site Géorisques : www.georisques.gouv.fr
Voir plus

Référence: 329241
Honoraires à la charge du vendeur.
DPE
A
B
C
D
E
F
G
GES
A
B
C
D
E
F
G
Maison à GOURNAY-SUR-MARNE
Maison à GOURNAY-SUR-MARNE
Maison à GOURNAY-SUR-MARNE
Maison à GOURNAY-SUR-MARNE
Maison à GOURNAY-SUR-MARNE
Maison à GOURNAY-SUR-MARNE
Maison à GOURNAY-SUR-MARNE
Maison à GOURNAY-SUR-MARNE
Maison à GOURNAY-SUR-MARNE
Maison à GOURNAY-SUR-MARNE
Maison à GOURNAY-SUR-MARNE
Maison à GOURNAY-SUR-MARNE
Maison à GOURNAY-SUR-MARNE
Maison à GOURNAY-SUR-MARNE
Maison à GOURNAY-SUR-MARNE
Maison à GOURNAY-SUR-MARNE
Maison à GOURNAY-SUR-MARNE
Maison à GOURNAY-SUR-MARNE
Maison à GOURNAY-SUR-MARNE
Maison à GOURNAY-SUR-MARNE
Maison à GOURNAY-SUR-MARNE
Maison à GOURNAY-SUR-MARNE
Maison à GOURNAY-SUR-MARNE
Maison à GOURNAY-SUR-MARNE
Maison à GOURNAY-SUR-MARNE
Maison à GOURNAY-SUR-MARNE
Maison à GOURNAY-SUR-MARNE
Maison à GOURNAY-SUR-MARNE
Maison à GOURNAY-SUR-MARNE
Maison à GOURNAY-SUR-MARNE
Géorisques

Les informations sur les risques auxquels ce bien est exposé sont disponibles sur le site Géorisques : www.georisques.gouv.fr

Ce site est protégé par hCaptcha Politique de confidentialité et Conditions d’utilisation s’appliquent.

En poursuivant votre navigation sans modifier vos paramètres, vous acceptez l'utilisation de cookies susceptibles de réaliser des statistiques de visite. Cliquez ici pour plus d'informations