Bénéficiez des services de nos partenaires locaux soigneusement sélectionnés
pour vous accompagner dans votre parcours d'achat immobilier

Maison individuelle sur sous sol

— Ancenis 44150 —
229 900 €
106 m²
5 pièces
balcon/terrasse

Nos partenaires locaux
Pavillon individuel sur sous sol de 106m2 habitable sur la commune d'Anetz, situé dans un hameau à 5 minutes d'Ancenis sur un terrain entièrement clos de 2975m2.

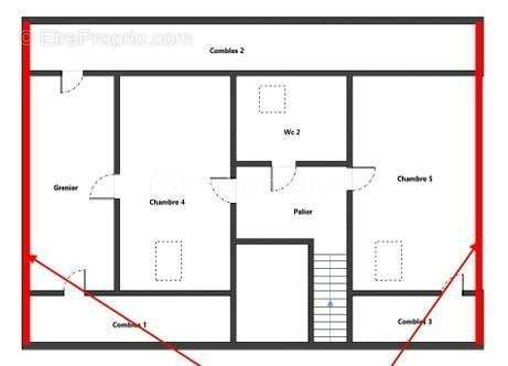
Ce bien est composé au rez de chaussée, d'une cuisine aménagée et équipée, un salon séjour avec cheminée, une salle de douche, wc indépendant, trois chambres et à l'étage deux chambres et wc indépendant sous rampant ( non compris dans la surface m2 du bien)

A noter assainissement non conforme

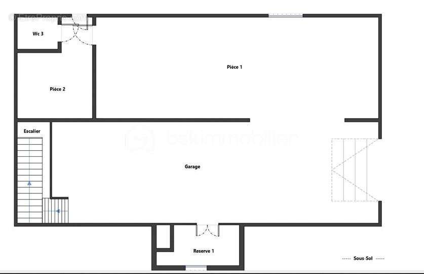
Maison entièrement sur sous sol d'environ 97m2

Cette annonce référence 329277 vous est présentée par votre agent commercial BSK Immobilier GREGORY TREMBLAY (EI) immatriculé au RSAC de NANTES (44200) sous le numéro 89237355600018.

Prix du bien : 229 900,00 €
Les honoraires d'agence sont à la charge du vendeur.

A propos des performances énergétiques :
Date de réalisation du diagnostic énergétique : 04/08/2025
Score DPE : 298 kWhEP/m²/an
Score GES : 12 kgepCO2/m²/an
Montant estimé des dépenses annuelles d'énergie pour un usage standard : entre 2870.00 € et 3930.00 € par an. Prix moyens des énergies indexés sur l'année 2021 (abonnements compris).

Les informations sur les risques auxquels ce bien est exposé sont disponibles sur le site Géorisques : www.georisques.gouv.fr
Voir plus

Référence: 329277
Honoraires à la charge du vendeur.
DPE
A
B
C
D
E
F
G
GES
A
B
C
D
E
F
G
Maison à ANCENIS
Maison à ANCENIS
Maison à ANCENIS
Maison à ANCENIS
Maison à ANCENIS
Maison à ANCENIS
Maison à ANCENIS
Maison à ANCENIS
Maison à ANCENIS
Géorisques

Les informations sur les risques auxquels ce bien est exposé sont disponibles sur le site Géorisques : www.georisques.gouv.fr

Ce site est protégé par hCaptcha Politique de confidentialité et Conditions d’utilisation s’appliquent.

En poursuivant votre navigation sans modifier vos paramètres, vous acceptez l'utilisation de cookies susceptibles de réaliser des statistiques de visite. Cliquez ici pour plus d'informations