Bénéficiez des services de nos partenaires locaux soigneusement sélectionnés
pour vous accompagner dans votre parcours d'achat immobilier

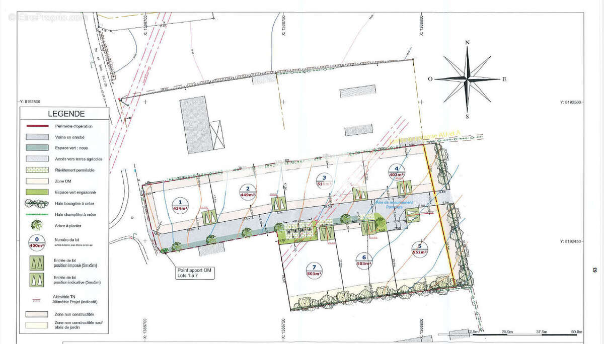
Terrain Yquelon 493 m2

— Yquelon 50400 —
134 000 €
493 m²
jardin

Nos partenaires locaux
Terrain à bâtir de 493 m² borné et viabilisé au calme . Constructeur libre. (7.20 % honoraires TTC à la charge de l'acquéreur.)

Référence: 53206
Honoraires d'agence de 7.2% à la charge de l'acquéreur
Barème des honoraires
Terrain à YQUELON
Terrain à YQUELON
Terrain à YQUELON
Terrain à YQUELON
Terrain à YQUELON
Géorisques

Les informations sur les risques auxquels ce bien est exposé sont disponibles sur le site Géorisques : www.georisques.gouv.fr

Ce site est protégé par hCaptcha Politique de confidentialité et Conditions d’utilisation s’appliquent.