Commerce 1110 m² à Tours

— Tours 37200 —
2 205 000 €
1 110 m²

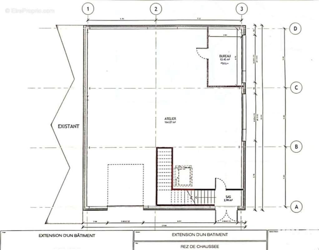
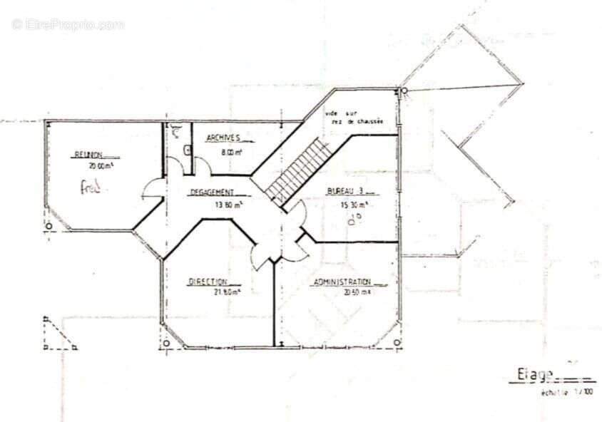
Iad France - Hélène Thibaud ([Coordonnées masquées]) vous propose : Local professionnel bénéficiant d'une localisation stratégique (à proximité immédiate de la rocade).al Les 1110 m² environ de surface se répartissent entre bureaux et ateliers, 834 m² environ de plain pied (bureaux et ateliers) et 278 m² environ à l'étage (uniquement des bureaux.
2 espaces 'ateliers' et 10 bureaux.

Le local d'origine a été construit en 1995, une extension a été réalisée en 2018 selon les normes RT 2012.

Le local initial totalise 736 m² environ : 465 m² environ d'atelier (exclusivement en rez-de-chaussée) et 289 m² environ de bureaux (dont 100 m² environ sur 4 bureaux à l'étage).

L'extension offre 360 m² environ supplémentaires, soit 180 m² environ par niveau. Le rez-de-chaussée accueille les ateliers ainsi qu'un bureau. À l'étage, bureaux et sanitaires. Chacun des 6 bureaux bénéficie d'une climatisation réversible.

Les plans des bâtiments et différents niveaux sont joints en photographie.

Quai de chargement pour camion.

Il est possible de circuler d'un bâtiment à l'autre via les ateliers. Pour autant, il est également possible de condamner cet accès de manière à rendre chacun des bâtiments indépendant et destiné à des activités distinctes.

De nombreuses possibilités sur ces locaux !
On en discute autour d'une visite ?

Information d'affichage énergétique sur le bien associé à cette annonce : DPE NS indice et GES NS indice. La présente annonce immobilière a été rédigée sous la responsabilité éditoriale de Mme Hélène Thibaud (ID 70668), Agent Commercial mandataire en immobilier immatriculé au Registre Spécial des Agents Commerciaux (RSAC) du Tribunal de Commerce de TOURS sous le numéro 912318987
Retrouvez tous nos biens sur notre site internet. www.iadfrance.fr.Informations LOI ALUR : Honoraires charge vendeur. (gedeon_6727_33064462)
Voir plus

Référence: 1991563
Honoraires à la charge du vendeur.
Barème des honoraires
Photo 1 - Commerce à TOURS
Photo 1
Photo 2 - Commerce à TOURS
Photo 2
Photo 3 - Commerce à TOURS
Photo 3
Photo 4 - Commerce à TOURS
Photo 4
Photo 5 - Commerce à TOURS
Photo 5
Photo 6 - Commerce à TOURS
Photo 6
Photo 7 - Commerce à TOURS
Photo 7
Photo 8 - Commerce à TOURS
Photo 8
Photo 9 - Commerce à TOURS
Photo 9
Géorisques

Les informations sur les risques auxquels ce bien est exposé sont disponibles sur le site Géorisques : www.georisques.gouv.fr

Ce site est protégé par hCaptcha Politique de confidentialité et Conditions d’utilisation s’appliquent.

En poursuivant votre navigation sans modifier vos paramètres, vous acceptez l'utilisation de cookies susceptibles de réaliser des statistiques de visite. Cliquez ici pour plus d'informations