Bénéficiez des services de nos partenaires locaux soigneusement sélectionnés
pour vous accompagner dans votre parcours d'achat immobilier

Maison de caractère au centre de Genillé, à 11 km de Loches ! Idéal gîtes ou chambres d’hôtes.

— Genille 37460 —
222 600 €
114 m² / 216 m²
5 pièces
parkingjardin

Nos partenaires locaux
Située dans un village authentique et paisible, à seulement 11 km de Loches et 24 km du ZooParc de Beauval, cette charmante maison en pierre séduira les amateurs de biens de caractère. Vous apprécierez ses tommettes d’origine, ses beaux volumes et son ambiance chaleureuse.
La maison développe 114 m2 habitables, auxquels s’ajoute un espace supplémentaire à rénover, bénéficiant d’une entrée indépendante : idéal pour la création d’un gîte, d’une chambre d’hôtes ou d’un logement complémentaire.
Composition détaillée la maison :
Rez-de-chaussée (65m2)
- Entrée et couloir de 7,5 m2
- Cuisine aménagée / séjour ouvert de 20 m2 avec accès direct à la cour
- Salon de 16 m2
- Salle d’eau avec WC de 2,4 m2
- Chambre de 20 m2 donnant sur la cour intérieure
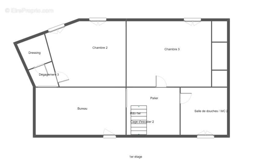
Premier étage (48m2)
- Un palier desservant un bureau suivi d'une chambre de15 m2.
- Une chambre 13 m2
- Salle d’eau avec WC
Deuxième étage (45m2)
- Espace entièrement à rénover, comprenant un palier, une chambre, un pièce avec point d'eau ainsi qu'un grenier aménageable avec entrée indépendante, offrant de nombreuses possibilités d’aménagement (suite parentale, appartement indépendant, …)
Extérieurs :
- Cour intérieure agréable, idéale pour profiter des beaux jours
- Grange attenante et deux caves voûtées

Le bien comprend également :
- Une grange de 34 m2 à remettre en état, parfaite pour un atelier, un garage ou du stockage.
- Un grenier aménageable offrant un potentiel d’agrandissement.
- Deux caves, idéales pour le stockage ou l’aménagement d’un espace de dégustation ou de loisirs.
Ce bien a été partiellement rénové, la toiture à été révisée et refaite, avec une cuisine récente et fonctionnelle. Le rez-de-chaussée bénéficie du double vitrage (hors côté cuisine) ainsi que le premier, tandis que le second étage reste en simple vitrage et à restaurer.
Idéal pour les amoureux de la pierre, des projets personnalisés ou un investissement locatif touristique. À découvrir sans tarder !
Honoraire 6% à la charge de l'acquéreur. prix de vente net vendeur 210 000€.
Pour plus d’informations, contactez Fanny Adalid au 06 18 53 96 22 (EI - Agent commercial - RSAC 911 771 566) Cabinet Saulnier Immobilier.
Les informations sur les risques auxquels ce bien est exposé sont disponibles sur le site Géorisques : www.georisques.gouv.fr
Cette annonce vous est proposée par ADALID FANNY - EI - NoRSAC: 911 771 566, Enregistré à Chambre de commerce et de l'industrie de La Rochelle Le Cabinet Saulnier Immobilier vous accueille à son agence de Bléré (37150) au 20 rue de Loches et celle de Montrichard (41400) au 68 rue Nationale
Voir plus

Référence: 4
Honoraires d'agence de 6% à la charge de l'acquéreur
DPE
A
B
C
D
E
F
G
GES
A
B
C
D
E
F
G
Maison à GENILLE
Maison à GENILLE
Maison à GENILLE
Maison à GENILLE
Maison à GENILLE
Maison à GENILLE
Maison à GENILLE
Maison à GENILLE
Maison à GENILLE
Maison à GENILLE
Maison à GENILLE
Maison à GENILLE
Maison à GENILLE
Maison à GENILLE
Maison à GENILLE
Maison à GENILLE
Maison à GENILLE
Maison à GENILLE
Maison à GENILLE
Maison à GENILLE
Maison à GENILLE
Géorisques

Les informations sur les risques auxquels ce bien est exposé sont disponibles sur le site Géorisques : www.georisques.gouv.fr

Ce site est protégé par hCaptcha Politique de confidentialité et Conditions d’utilisation s’appliquent.

En poursuivant votre navigation sans modifier vos paramètres, vous acceptez l'utilisation de cookies susceptibles de réaliser des statistiques de visite. Cliquez ici pour plus d'informations